Hi There! Is this Your First Time?
Did you know if you Register you have access to free search tools including the ability to save listings and property searches? Did you know that you can bypass the search altogether and have listings sent directly to your email address? Check out our how-to page for more info.
- Price$625,000
- Beds3
- Baths4
- Acres4.58
- Built2026
1021 Riverstone Drive, social Circle
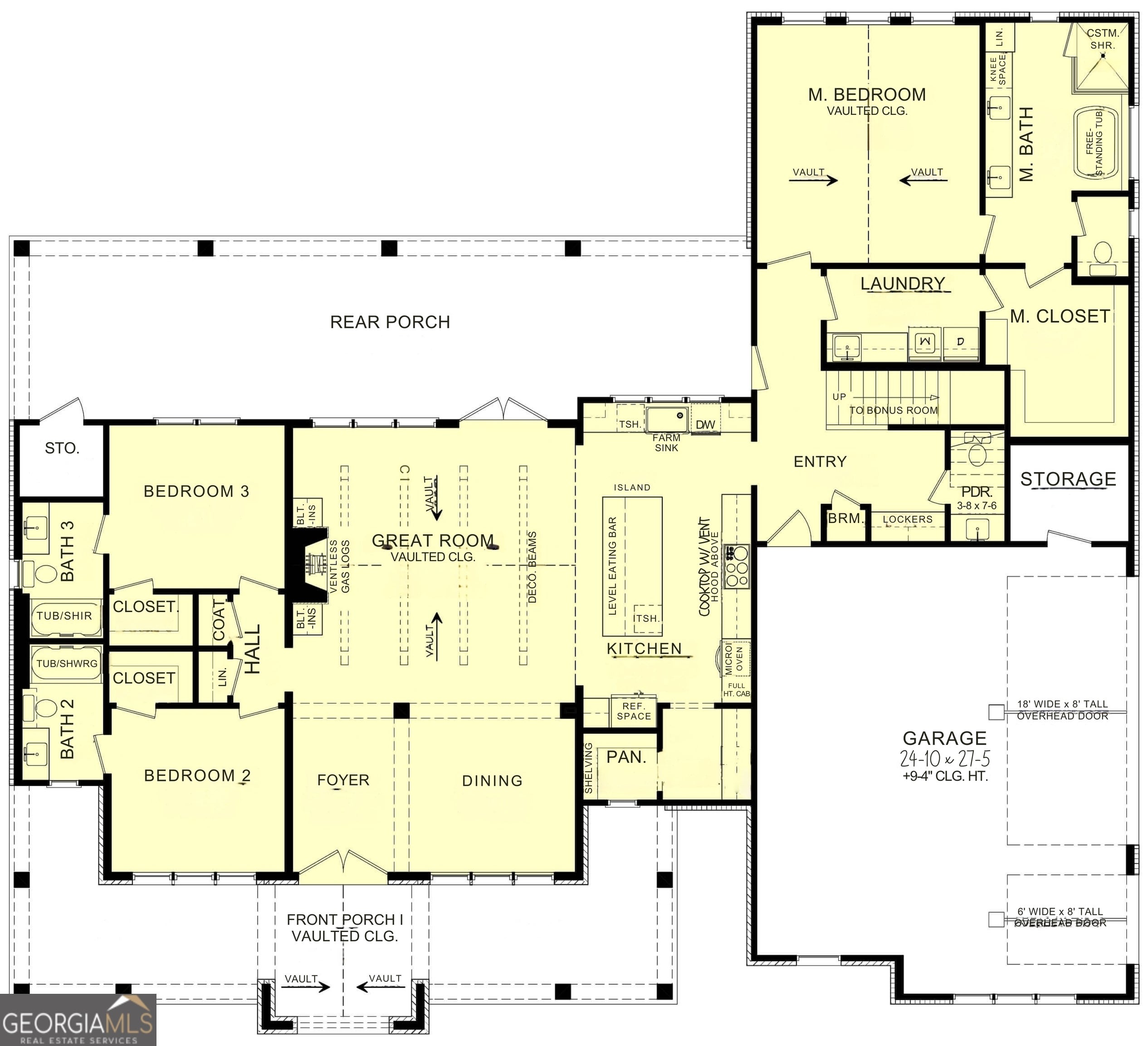
Brand-new custom home on 4.5 private acres in the Social Circle school zone, offering timeless curb appeal with board and batten Hardie siding, brick water table, and expansive front and back porches. Inside, the vaulted living area flows into a stunning kitchen featuring granite countertops, cooktop with vent hood, wall oven, butler's pantry, and oversized walk-in pantry. Decorative trim, crown molding, and high ceilings add elevated detail throughout. The vaulted primary suite includes a spa-like bath with soaking tub, oversized tile shower, and spacious walk-in closet. Each secondary bedroom features its own ensuite bath and walk-in closet for added privacy. An unfinished bonus room, already stubbed for a bath, provides future potential for additional living space. Enjoy peaceful acreage with room to expand, all while remaining convenient to shopping, dining, and I-20 access. Estimated completion June 2026. Plans and finishes subject to change at builder's discretion. Measurements approximate.
Essential Information
- MLS® #10696430
- Price$625,000
- Bedrooms3
- Bathrooms4.00
- Full Baths3
- Half Baths1
- Acres4.58
- Year Built2026
- TypeResidential
- Sub-TypeSingle Family Residence
- StyleCraftsman
- StatusActive
Amenities
- UtilitiesElectricity Available, Water Available
- Parking Spaces3
- ParkingAttached, Garage
Exterior
- Lot DescriptionLevel
- WindowsDouble Pane Windows
- RoofComposition
- ConstructionBrick, Concrete, Other
- FoundationSlab
Additional Information
- Days on Market14
Community Information
- Address1021 Riverstone Drive
- SubdivisionCreekside at riverstone
- Citysocial Circle
- CountyWalton
- StateGA
- Zip Code30025
Interior
- Interior FeaturesDouble Vanity, High Ceilings, Master On Main Level, Separate Shower, Soaking Tub, Split Bedroom Plan, Vaulted Ceiling(s), Walk-In Closet(s)
- AppliancesCooktop, Dishwasher, Microwave, Oven (Wall), Stainless Steel Appliance(s), Tankless Water Heater
- HeatingCentral, Electric
- CoolingCeiling Fan(s), Central Air, Electric
- FireplaceYes
- # of Fireplaces1
- FireplacesLiving Room
- StoriesOne
School Information
- ElementarySocial Circle Primary/Elementa
- MiddleSocial Circle
- HighSocial Circle
Listing Details
- Listing Provided Courtesy Of Purser Realty
Price Change History for 1021 Riverstone Drive, social Circle, GA (MLS® #10696430)
| Date | Details | Price | Change |
|---|---|---|---|
| Active (from New) | – | – |
The data relating to real estate for sale on this web site comes in part from the Broker Reciprocity Program of Georgia MLS. Real estate listings held by brokerage firms other than Go Realty Of Georgia & Alabam are marked with the Broker Reciprocity logo and detailed information about them includes the name of the listing brokers.
The information being provided is for consumers' personal, non-commercial use and may not be used for any purpose other than to identify prospective properties consumers may be interested in purchasing. Information Deemed Reliable But Not Guaranteed.
The broker providing this data believes it to be correct, but advises interested parties to confirm them before relying on them in a purchase decision.
Copyright 2026 Georgia MLS. All rights reserved.
Listing information last updated on March 17th, 2026 at 7:30am CDT.


