Hi There! Is this Your First Time?
Did you know if you Register you have access to free search tools including the ability to save listings and property searches? Did you know that you can bypass the search altogether and have listings sent directly to your email address? Check out our how-to page for more info.
- Price$262,000
- Beds4
- Baths4
- SQ. Feet1,959
- Acres0.11
- Built1989
5328 Ridge Forest Drive, Stone Mountain
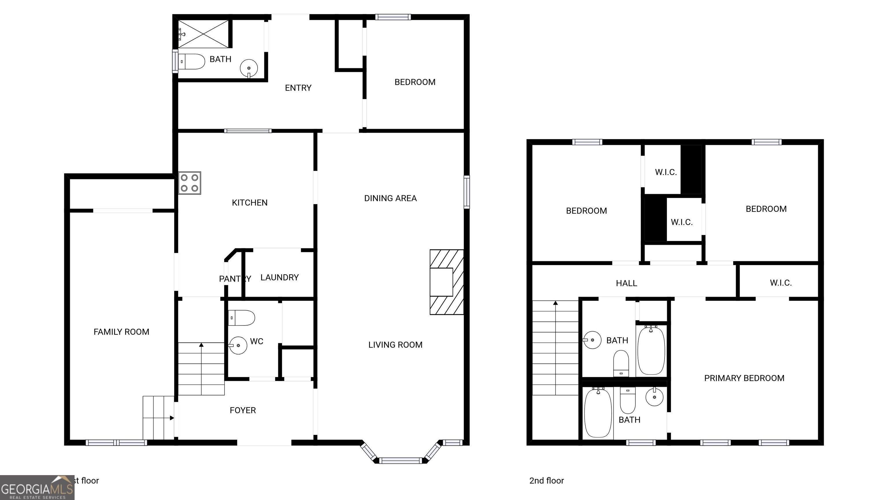
Welcome to 5328 Ridge Forest Dr, a home that exudes warmth and charm. The living room is graced with a cozy fireplace, perfect for those chilly evenings. The kitchen is a chef's dream, boasting all stainless steel appliances and an accent backsplash that adds a touch of elegance. A storage shed provides ample space for your tools and equipment. The fenced-in backyard offers privacy and space for outdoor activities. The home has been recently refreshed with fresh interior paint, giving it a clean and modern look. This property is a perfect blend of comfort and style, waiting for you to make it your own. Included 100-Day Home Warranty with buyer activation
Essential Information
- MLS® #10697128
- Price$262,000
- Bedrooms4
- Bathrooms4.00
- Full Baths3
- Half Baths1
- Square Footage1,959
- Acres0.11
- Year Built1989
- TypeResidential
- Sub-TypeSingle Family Residence
- StyleOther
- StatusActive
Amenities
- UtilitiesWater Available, Electricity Available, Sewer Available
- ParkingNone
Exterior
- Lot DescriptionNone
- RoofComposition
- ConstructionOther
- FoundationSlab
Additional Information
- Days on Market19
Community Information
- Address5328 Ridge Forest Drive
- SubdivisionRidge Forest Ph 02b
- CityStone Mountain
- CountyDeKalb
- StateGA
- Zip Code30083
Interior
- Interior FeaturesOther
- AppliancesMicrowave, Dishwasher, Oven/Range (Combo)
- HeatingCentral
- CoolingCentral Air
- FireplaceYes
- # of Fireplaces1
- StoriesTwo
School Information
- ElementaryStone Mountain
- MiddleStone Mountain
- HighStone Mountain
Listing Details
- Listing Provided Courtesy Of Opendoor Brokerage
Price Change History for 5328 Ridge Forest Drive, Stone Mountain, GA (MLS® #10697128)
| Date | Details | Price | Change |
|---|---|---|---|
| Active | – | – | |
| Price Change | – | – | |
| Price Reduced (from $270,000) | $262,000 | $8,000 (2.96%) | |
| Active (from New) | – | – |
The data relating to real estate for sale on this web site comes in part from the Broker Reciprocity Program of Georgia MLS. Real estate listings held by brokerage firms other than Go Realty Of Georgia & Alabam are marked with the Broker Reciprocity logo and detailed information about them includes the name of the listing brokers.
The information being provided is for consumers' personal, non-commercial use and may not be used for any purpose other than to identify prospective properties consumers may be interested in purchasing. Information Deemed Reliable But Not Guaranteed.
The broker providing this data believes it to be correct, but advises interested parties to confirm them before relying on them in a purchase decision.
Copyright 2026 Georgia MLS. All rights reserved.
Listing information last updated on March 14th, 2026 at 7:01pm CDT.





























