Hi There! Is this Your First Time?
Did you know if you Register you have access to free search tools including the ability to save listings and property searches? Did you know that you can bypass the search altogether and have listings sent directly to your email address? Check out our how-to page for more info.
- Price$209,900
- Beds5
- Baths3
- SQ. Feet2,112
- Acres0.34
- Built1979
1015 Nimblewood Way, Stone Mountain
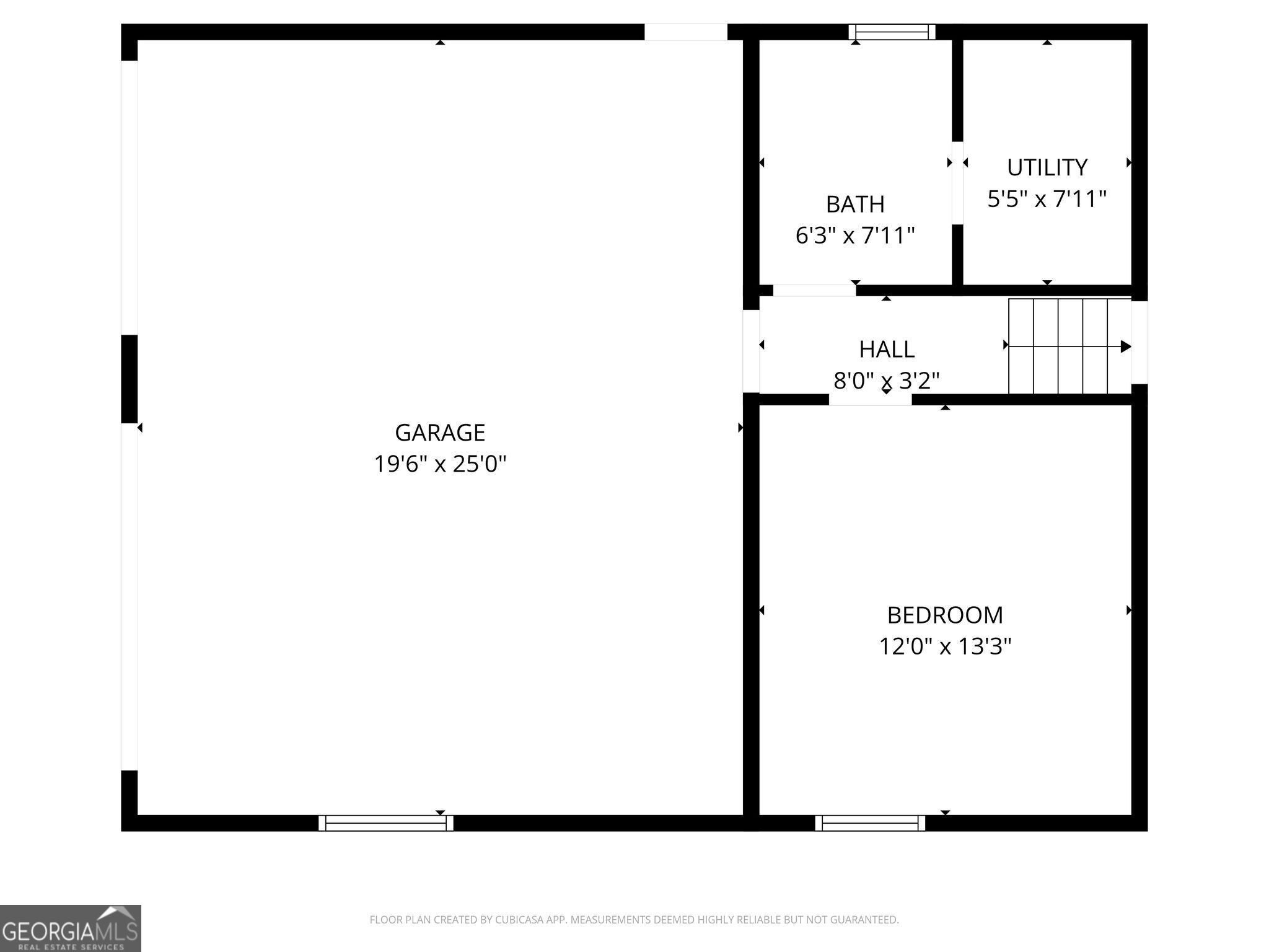
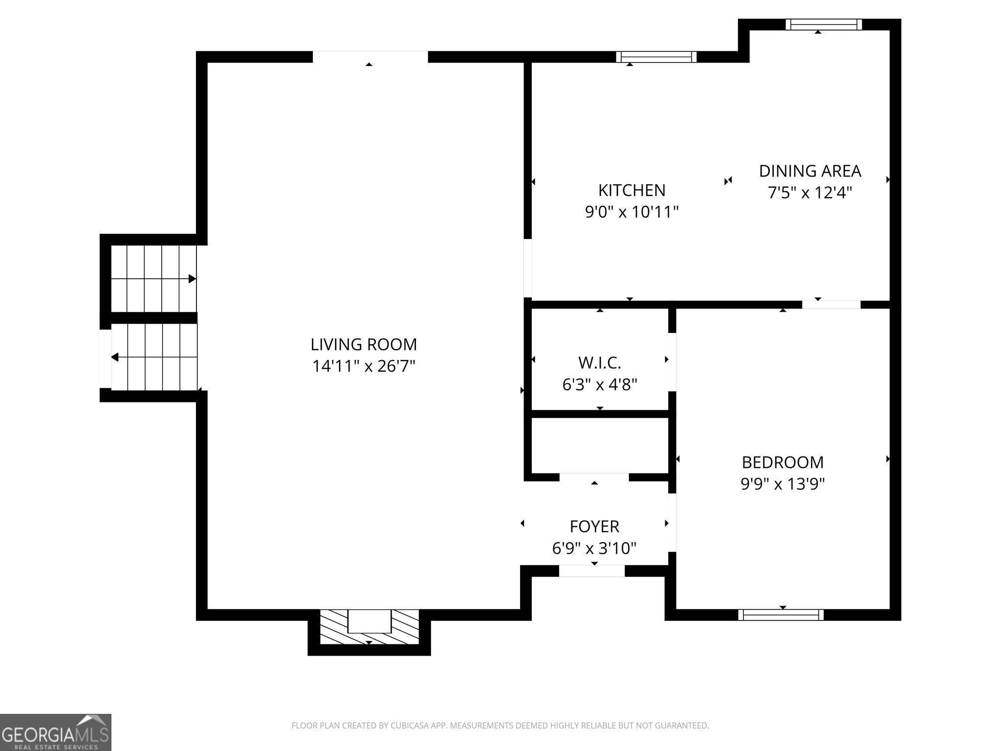
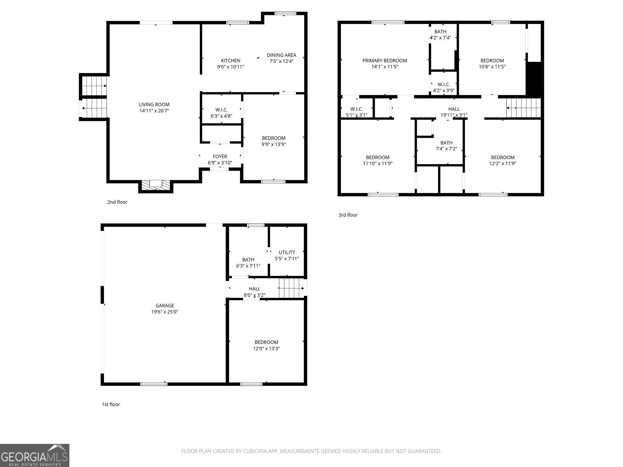
This 2,112 sq. ft., 5 bedroom, 2 full, 1 half bath split-level residence in the established Carriage Trace community features a versatile floor plan across multiple finished levels. The main floor contains a bright living room with vaulted ceilings and a fireplace, alongside a functional kitchen and dedicated dining area and another bedroom with a walk in closet. The upper level houses the primary suite with a private bath and two additional bedrooms sharing a central hallway bathroom. A spacious additional bedroom is located on the lower level. Interior amenities include a laundry room and direct access to the two-car attached garage. Outside, the 0.34-acre lot includes a large, level backyard with privacy fencing, a storage shed, and a concrete patio for outdoor activities. Situated minutes from Stone Mountain Park, this home provides a practical layout and substantial living space in a convenient suburban location.
Essential Information
- MLS® #10697375
- Price$209,900
- Bedrooms5
- Bathrooms3.00
- Full Baths2
- Half Baths1
- Square Footage2,112
- Acres0.34
- Year Built1979
- TypeResidential
- Sub-TypeSingle Family Residence
- StyleBrick Front, Traditional
- StatusUnder Contract
Amenities
- UtilitiesElectricity Available, Natural Gas Available, Sewer Connected, Water Available
- Parking Spaces2
- ParkingAttached, Garage, Off Street
Exterior
- Lot DescriptionNone
- RoofComposition
- ConstructionBrick, Vinyl Siding
- FoundationSlab
Additional Information
- Days on Market16
Community Information
- Address1015 Nimblewood Way
- SubdivisionBRIDGEWATER
- CityStone Mountain
- CountyDeKalb
- StateGA
- Zip Code30088
Interior
- Interior FeaturesOther
- AppliancesDishwasher, Oven/Range (Combo), Refrigerator
- HeatingCentral, Forced Air, Natural Gas
- CoolingCentral Air
- FireplaceYes
- # of Fireplaces1
- FireplacesLiving Room
- StoriesMulti/Split
School Information
- ElementaryOther
- MiddleRedan
- HighRedan
Listing Details
- Listing Provided Courtesy Of Trelora Realty, Inc.
Price Change History for 1015 Nimblewood Way, Stone Mountain, GA (MLS® #10697375)
| Date | Details | Price | Change |
|---|---|---|---|
| Under Contract | – | – | |
| Active (from New) | – | – |
The data relating to real estate for sale on this web site comes in part from the Broker Reciprocity Program of Georgia MLS. Real estate listings held by brokerage firms other than Go Realty Of Georgia & Alabam are marked with the Broker Reciprocity logo and detailed information about them includes the name of the listing brokers.
The information being provided is for consumers' personal, non-commercial use and may not be used for any purpose other than to identify prospective properties consumers may be interested in purchasing. Information Deemed Reliable But Not Guaranteed.
The broker providing this data believes it to be correct, but advises interested parties to confirm them before relying on them in a purchase decision.
Copyright 2026 Georgia MLS. All rights reserved.
Listing information last updated on March 14th, 2026 at 7:15am CDT.

































