Hi There! Is this Your First Time?
Did you know if you Register you have access to free search tools including the ability to save listings and property searches? Did you know that you can bypass the search altogether and have listings sent directly to your email address? Check out our how-to page for more info.
- Price$209,900
- Beds3
- Baths2
- SQ. Feet1,461
- Acres0.23
- Built1990
3263 Rivermist Cove, Decatur
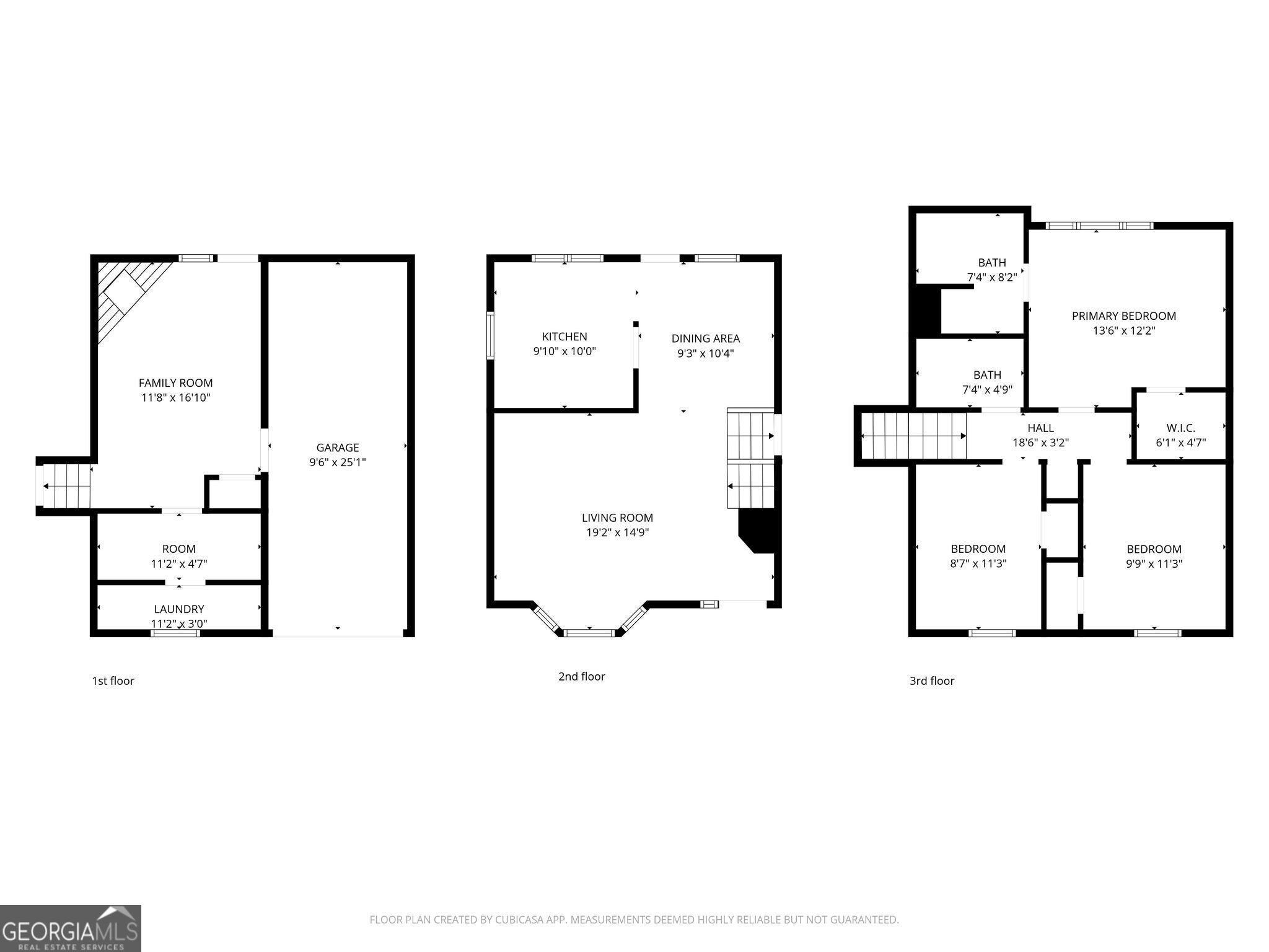
This split-level residence, constructed in 1990, features a wood frame and partial brick exterior situated on a 0.230-acre lot within the Riverside Station subdivision. The interior layout is distributed across three levels, with the upper floor containing three bedrooms and two full bathrooms. The main level serves as the primary living area, encompassing a kitchen, a formal dining space, and a living room. The lower level includes a family room with a masonry fireplace, a dedicated laundry room, and access to the attached one-car front-entry garage. The property offers approximately 1,461 square feet of heated space with central HVAC and gas heating systems, while the exterior features a level-to-sloping topography typical of the surrounding neighborhood.
Essential Information
- MLS® #10697400
- Price$209,900
- Bedrooms3
- Bathrooms2.00
- Full Baths2
- Square Footage1,461
- Acres0.23
- Year Built1990
- TypeResidential
- Sub-TypeSingle Family Residence
- StyleBrick/Frame, Traditional
- StatusActive
Amenities
- UtilitiesElectricity Available, Sewer Connected, Water Available
- Parking Spaces1
- ParkingAttached, Garage
Exterior
- Lot DescriptionCul-De-Sac, Level
- RoofComposition
- ConstructionWood Siding
- FoundationSlab
Additional Information
- Days on Market14
Community Information
- Address3263 Rivermist Cove
- SubdivisionRiverside Station
- CityDecatur
- CountyDeKalb
- StateGA
- Zip Code30034
Interior
- Interior FeaturesPulldown Attic Stairs
- AppliancesDishwasher, Oven/Range (Combo), Refrigerator
- HeatingCentral, Electric
- CoolingCentral Air, Electric
- FireplaceYes
- # of Fireplaces1
- FireplacesFamily Room
- StoriesMulti/Split
School Information
- ElementaryOak View
- MiddleCedar Grove
- HighCedar Grove
Listing Details
- Listing Provided Courtesy Of Trelora Realty, Inc.
Price Change History for 3263 Rivermist Cove, Decatur, GA (MLS® #10697400)
| Date | Details | Price | Change |
|---|---|---|---|
| Active (from New) | – | – |
The data relating to real estate for sale on this web site comes in part from the Broker Reciprocity Program of Georgia MLS. Real estate listings held by brokerage firms other than Go Realty Of Georgia & Alabam are marked with the Broker Reciprocity logo and detailed information about them includes the name of the listing brokers.
The information being provided is for consumers' personal, non-commercial use and may not be used for any purpose other than to identify prospective properties consumers may be interested in purchasing. Information Deemed Reliable But Not Guaranteed.
The broker providing this data believes it to be correct, but advises interested parties to confirm them before relying on them in a purchase decision.
Copyright 2026 Georgia MLS. All rights reserved.
Listing information last updated on April 2nd, 2026 at 12:00am CDT.





































