Hi There! Is this Your First Time?
Did you know if you Register you have access to free search tools including the ability to save listings and property searches? Did you know that you can bypass the search altogether and have listings sent directly to your email address? Check out our how-to page for more info.
- Price$399,000
- Beds3
- Baths3
- SQ. Feet2,137
- Acres1.51
- Built2006
354 Mystic View Lane, Clayton
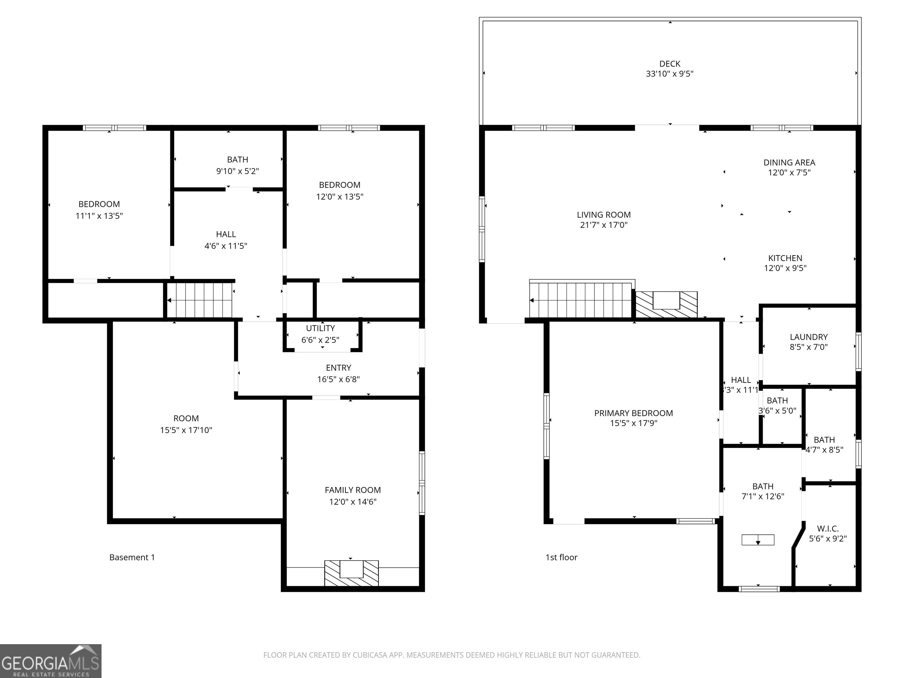
Well-maintained 3-bedroom, 2.5-bath home offering privacy, mountain views, and a convenient location just minutes from downtown Clayton. Situated in a quiet neighborhood, this home combines peaceful mountain living with easy access to shopping, dining, and local amenities. The main living area features a warm and inviting layout with a fireplace, while a second fireplace downstairs adds additional comfort and charm. Enjoy the mountain views from the spacious deck, perfect for outdoor dining or relaxing. The lower level opens to a patio area, providing additional outdoor living space and great potential for entertaining. With its private setting, multiple outdoor spaces, abundance of storage and close proximity to town, this home offers the ideal balance of tranquility and convenience. Note some of the photos have been virtually staged.
Essential Information
- MLS® #10697760
- Price$399,000
- Bedrooms3
- Bathrooms3.00
- Full Baths2
- Half Baths1
- Square Footage2,137
- Acres1.51
- Year Built2006
- TypeResidential
- Sub-TypeSingle Family Residence
- StyleCountry/Rustic
- StatusUnder Contract
Amenities
- UtilitiesCable Available, Electricity Available, High Speed Internet, Water Available, Propane
- ParkingParking Pad, Guest
- ViewMountain(s)
Exterior
- Lot DescriptionPrivate, Steep Slope
- RoofComposition
- ConstructionWood Siding
Additional Information
- Days on Market12
Community Information
- Address354 Mystic View Lane
- SubdivisionPolly's Place
- CityClayton
- CountyRabun
- StateGA
- Zip Code30525
Interior
- Interior FeaturesBookcases, Master On Main Level, Separate Shower, Soaking Tub, Walk-In Closet(s)
- AppliancesDishwasher, Dryer, Electric Water Heater, Microwave, Oven/Range (Combo), Refrigerator, Washer
- HeatingCentral, Propane
- CoolingCeiling Fan(s), Central Air, Electric, Zoned
- FireplaceYes
- # of Fireplaces2
- FireplacesGas Log, Living Room, Basement
- StoriesTwo
School Information
- ElementaryRabun County Primary/Elementar
- MiddleRabun County
- HighRabun County
Listing Details
- Listing Provided Courtesy Of Poss Realty
Price Change History for 354 Mystic View Lane, Clayton, GA (MLS® #10697760)
| Date | Details | Price | Change |
|---|---|---|---|
| Under Contract (from New) | – | – |
The data relating to real estate for sale on this web site comes in part from the Broker Reciprocity Program of Georgia MLS. Real estate listings held by brokerage firms other than Go Realty Of Georgia & Alabam are marked with the Broker Reciprocity logo and detailed information about them includes the name of the listing brokers.
The information being provided is for consumers' personal, non-commercial use and may not be used for any purpose other than to identify prospective properties consumers may be interested in purchasing. Information Deemed Reliable But Not Guaranteed.
The broker providing this data believes it to be correct, but advises interested parties to confirm them before relying on them in a purchase decision.
Copyright 2026 Georgia MLS. All rights reserved.
Listing information last updated on April 5th, 2026 at 11:15am CDT.




























































