Hi There! Is this Your First Time?
Did you know if you Register you have access to free search tools including the ability to save listings and property searches? Did you know that you can bypass the search altogether and have listings sent directly to your email address? Check out our how-to page for more info.
- Price$199,900
- Beds3
- Baths2
- SQ. Feet1,405
- Acres1.13
- Built1958
3011 Kelley Chapel Road, Decatur
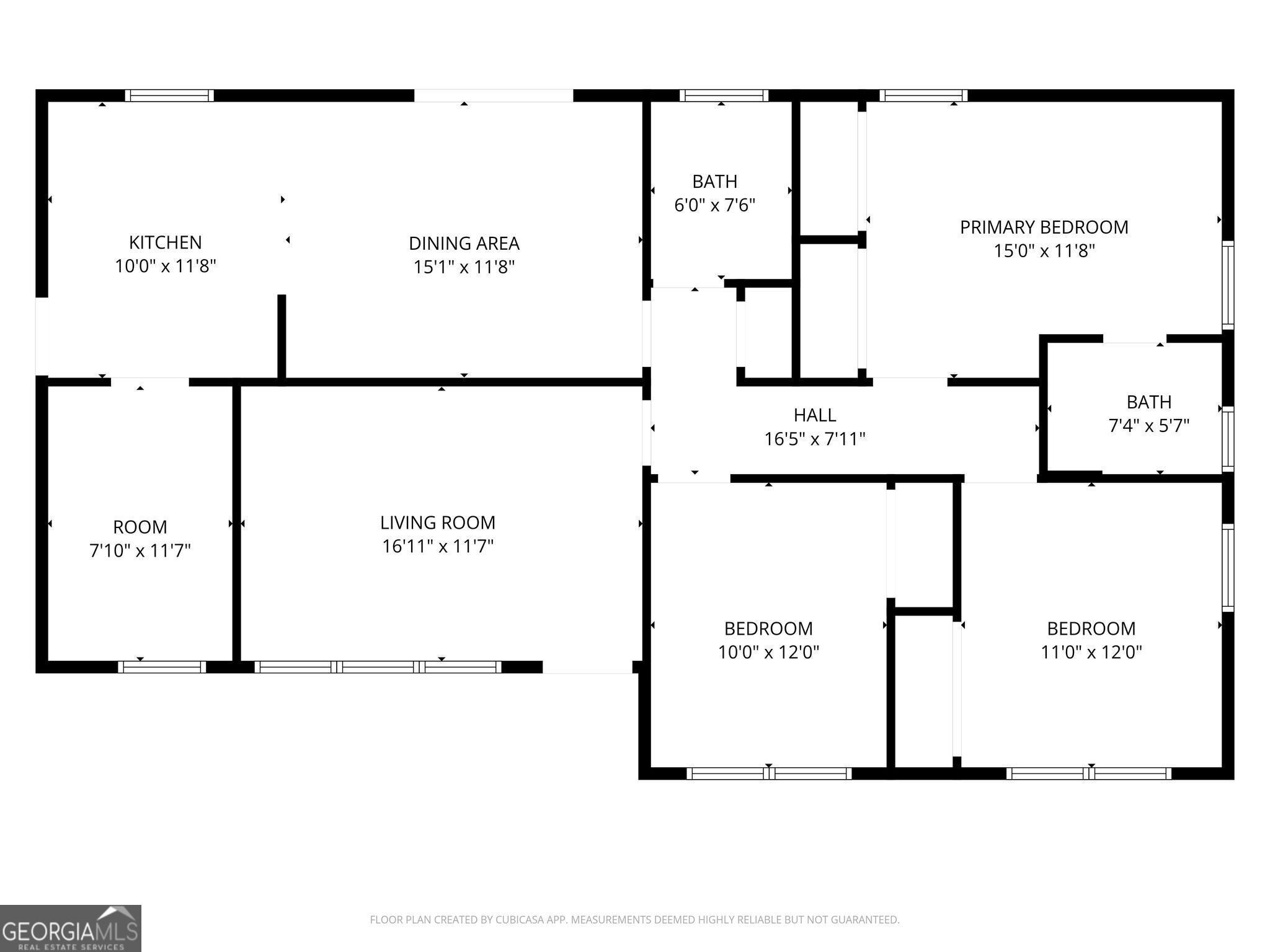
Discover the perfect blend of mid-century charm and expansive outdoor living with this 1,405 sq. ft. brick ranch situated on a rare 1.13-acre level lot. Located in the established Milam Estate subdivision, this 3-bedroom, 1.5 bath residence offers a functional floorplan featuring a light-filled living area with a cozy fireplace, a dedicated dining space, and original hardwood flooring potential. The kitchen provides ample cabinetry and overlooks the massive, private backyard-a true gardener's dream or an ideal space for future expansion. The primary suite includes a convenient half-bath, complemented by two additional well-proportioned bedrooms and a full central bathroom. Enjoy the peace of unincorporated DeKalb County while being minutes away from local favorites; this property is ideally located within walking distance to Southwest DeKalb High School and offers quick access to I-20 for an easy commute to Downtown Atlanta or the Airport. Exterior features include a single-car carport, a classic brick facade, a deck off the kitchen for outdoor enjoyment and a storage-friendly bonus room.
Essential Information
- MLS® #10698802
- Price$199,900
- Bedrooms3
- Bathrooms2.00
- Full Baths1
- Half Baths1
- Square Footage1,405
- Acres1.13
- Year Built1958
- TypeResidential
- Sub-TypeSingle Family Residence
- StyleBrick 4 Side
- StatusUnder Contract
Amenities
- UtilitiesElectricity Available, Natural Gas Available, Sewer Connected, Water Available
- Parking Spaces1
- ParkingAttached, Carport
Exterior
- Lot DescriptionLevel
- RoofComposition
- ConstructionBrick
Additional Information
- Days on Market19
Community Information
- Address3011 Kelley Chapel Road
- SubdivisionMiliam Estates
- CityDecatur
- CountyDeKalb
- StateGA
- Zip Code30034
Interior
- Interior FeaturesMaster On Main Level
- AppliancesDishwasher, Microwave, Oven/Range (Combo), Refrigerator
- HeatingForced Air, Natural Gas
- CoolingCentral Air, Electric
- StoriesOne
School Information
- ElementaryRainbow
- MiddleChapel Hill
- HighSouthwest Dekalb
Listing Details
- Listing Provided Courtesy Of Trelora Realty, Inc.
Price Change History for 3011 Kelley Chapel Road, Decatur, GA (MLS® #10698802)
| Date | Details | Price | Change |
|---|---|---|---|
| Under Contract | – | – | |
| Active (from New) | – | – |
The data relating to real estate for sale on this web site comes in part from the Broker Reciprocity Program of Georgia MLS. Real estate listings held by brokerage firms other than Go Realty Of Georgia & Alabam are marked with the Broker Reciprocity logo and detailed information about them includes the name of the listing brokers.
The information being provided is for consumers' personal, non-commercial use and may not be used for any purpose other than to identify prospective properties consumers may be interested in purchasing. Information Deemed Reliable But Not Guaranteed.
The broker providing this data believes it to be correct, but advises interested parties to confirm them before relying on them in a purchase decision.
Copyright 2026 Georgia MLS. All rights reserved.
Listing information last updated on April 2nd, 2026 at 2:35pm CDT.































