Hi There! Is this Your First Time?
Did you know if you Register you have access to free search tools including the ability to save listings and property searches? Did you know that you can bypass the search altogether and have listings sent directly to your email address? Check out our how-to page for more info.
- Price$150,000
- Acres0.23
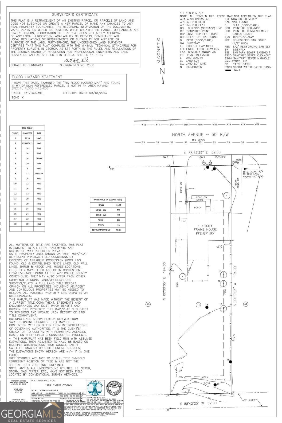
1666 North Avenue Nw, Atlanta
Prime investment opportunity in Atlanta. Discover the potential of this vacant land/lot located in one of Atlanta's rapidly growing neighborhoods, Grove Park. Conveniently located minutes from the Beltline, West End, Mercedes-Benz Stadium, Westside Park, Midtown, Downtown, and major interstates. This lot offers an excellent opportunity to build a new residence with the option for an accessory dwelling unit (ADU) or an income-producing investment property. New construction and revitalization are active throughout the surrounding area. All preparation work for permitted tree removal, demolition, and grading has been completed, making the property ready for development. The 10,088 sq. ft. lot presents strong potential for builders, developers, or investors. Property may be built using existing plans or alternative designs. Sale includes a BTT survey, site plans, and architectural plans. Recent comparable sales range from $543,000 to $640,000. Water and sewer taps are in place. Quiet street with strong neighborhood appeal. Lot is ready to build.
Essential Information
- MLS® #10702184
- Price$150,000
- Bathrooms0.00
- Acres0.23
- TypeLand
- Sub-TypeResidential Lot
- StatusActive
Amenities
- UtilitiesElectricity Available, Natural Gas Available, Sewer Available, Water Available
School Information
- ElementaryWoodson
- MiddleWoodland
- HighDouglass
Listing Details
- Listing Provided Courtesy Of Simply List
Community Information
- Address1666 North Avenue Nw
- SubdivisionBloomfield
- CityAtlanta
- CountyFulton
- StateGA
- Zip Code30318
Exterior
- Lot DescriptionLevel
Additional Information
- Days on Market20
Price Change History for 1666 North Avenue Nw, Atlanta, GA (MLS® #10702184)
| Date | Details | Price | Change |
|---|---|---|---|
| Active | – | – | |
| Price Change | – | – | |
| Price Reduced (from $160,000) | $150,000 | $10,000 (6.25%) | |
| Active (from New) | – | – |
The data relating to real estate for sale on this web site comes in part from the Broker Reciprocity Program of Georgia MLS. Real estate listings held by brokerage firms other than Go Realty Of Georgia & Alabam are marked with the Broker Reciprocity logo and detailed information about them includes the name of the listing brokers.
The information being provided is for consumers' personal, non-commercial use and may not be used for any purpose other than to identify prospective properties consumers may be interested in purchasing. Information Deemed Reliable But Not Guaranteed.
The broker providing this data believes it to be correct, but advises interested parties to confirm them before relying on them in a purchase decision.
Copyright 2026 Georgia MLS. All rights reserved.
Listing information last updated on March 28th, 2026 at 6:15pm CDT.


