Hi There! Is this Your First Time?
Did you know if you Register you have access to free search tools including the ability to save listings and property searches? Did you know that you can bypass the search altogether and have listings sent directly to your email address? Check out our how-to page for more info.
- Price$114,900
- Beds3
- Baths3
- SQ. Feet1,848
- Acres0.17
- Built1948
1101 Pine Avenue, Brunswick
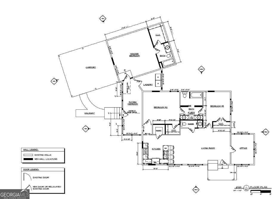
Investor special in Brunswick, GA! Located at 1101 Pine Avenue, this single-family home is a full fixer-upper and renovation opportunity with major upfront hurdles already cleared. Architectural plans are included and permits are pre-approved, allowing an investor, builder, or rehabber to move directly into construction without the typical design and approval delays. This property requires a complete renovation and is being sold as-is, making it ideal for a cash buyer, renovation loan, or experienced flipper seeking a true value-add opportunity. A brand-new roof has already been installed, providing a strong starting point for the rehab process. With strong after-repair resale potential, the estimated ARV is projected in the high $300,000s to low $400,000s range, depending on finishes and execution. Comparable renovated homes in the Brunswick area support the upside for investors ready to transform this property. Perfect for: - Fix-and-flip investors - Buy-and-hold investors seeking forced appreciation - Builders looking for a permitted project - Renovation specialists ready to execute Skip months of planning and permitting and start the renovation phase immediately. Opportunities with approved plans and permits in place are rare in this market.
Essential Information
- MLS® #10702687
- Price$114,900
- Bedrooms3
- Bathrooms3.00
- Full Baths2
- Half Baths1
- Square Footage1,848
- Acres0.17
- Year Built1948
- TypeResidential
- Sub-TypeSingle Family Residence
- StyleBrick 4 Side, Bungalow/Cottage
- StatusActive
Amenities
- UtilitiesSewer Connected
- ParkingCarport
- ViewCity
Exterior
- Lot DescriptionCity Lot, Corner Lot
- RoofComposition
- ConstructionBrick
Additional Information
- Days on Market38
Community Information
- Address1101 Pine Avenue
- SubdivisionDixville
- CityBrunswick
- CountyGlynn
- StateGA
- Zip Code31520
Interior
- Interior FeaturesOther
- AppliancesOther
- HeatingOther
- CoolingOther
- StoriesOne
School Information
- ElementarySt Simons
- MiddleGlynn
- HighGlynn Academy
Listing Details
- Listing Provided Courtesy Of Homecoin.com
- Office Info470 681-9225
Price Change History for 1101 Pine Avenue, Brunswick, GA (MLS® #10702687)
| Date | Details | Price | Change |
|---|---|---|---|
| Active | – | – | |
| Price Change | – | – | |
| Price Reduced (from $125,000) | $114,900 | $10,100 (8.08%) | |
| Active (from New) | – | – |
The data relating to real estate for sale on this web site comes in part from the Broker Reciprocity Program of Georgia MLS. Real estate listings held by brokerage firms other than Go Realty Of Georgia & Alabam are marked with the Broker Reciprocity logo and detailed information about them includes the name of the listing brokers.
The information being provided is for consumers' personal, non-commercial use and may not be used for any purpose other than to identify prospective properties consumers may be interested in purchasing. Information Deemed Reliable But Not Guaranteed.
The broker providing this data believes it to be correct, but advises interested parties to confirm them before relying on them in a purchase decision.
Copyright 2026 Georgia MLS. All rights reserved.
Listing information last updated on April 13th, 2026 at 1:17pm CDT.


