Hi There! Is this Your First Time?
Did you know if you Register you have access to free search tools including the ability to save listings and property searches? Did you know that you can bypass the search altogether and have listings sent directly to your email address? Check out our how-to page for more info.
- Price$699,900
- Acres1.00
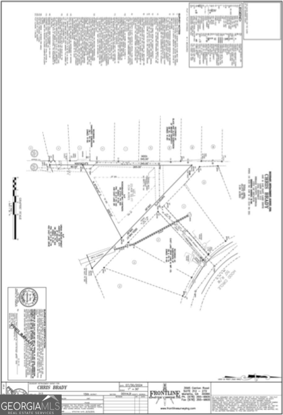
448 E Lake Drive, Decatur
Two exceptional lots at 446 and 448 E. Lake Drive are being sold together, offering a rare, full 1-acre resdential opportunity in the heart of Oakhurst. Thoughtfully prepared for building and complete with surveys and documentation, these lots provide a level of privacy seldom found in the area, bordered by lush greenery and tucked beside Oakhurst Park. With plenty of room to create your dream home, outdoor living spaces, and even a pool, the possibilities are truly endless. Accessed via an easement between 143 and 147 Hood Circle, the property features newly planted Green Giant arborvitae along the fence line, designed to mature into a natural privacy screen for years to come. Located in one of Decatur's most beloved, walkable neighborhoods and within the highly sought-after Decatur City Schools district, this special offering places you just a short stroll from Oakhurst Village's charming restaurants, coffee shops, boutiques, parks, and beloved community events (Oakhurst Porchfest!), while also providing easy access to downtown Decatur, Emory, Midtown Atlanta, and major highways-an inviting and rare opportunity for those seeking space, privacy, and true neighborhood charm. Buyers & builders - come check it out! BRING AN OFFER.
Essential Information
- MLS® #10704737
- Price$699,900
- Bathrooms0.00
- Acres1.00
- TypeLand
- Sub-TypeResidential Lot
- StatusActive
Amenities
- UtilitiesNone
- WaterfrontNo Dock Or Boathouse
School Information
- ElementaryWinnona Park
- MiddleOther
- HighDecatur
Listing Details
- Listing Provided Courtesy Of Renee Kunkler Realty
Community Information
- Address448 E Lake Drive
- SubdivisionOakhurst
- CityDecatur
- CountyDeKalb
- StateGA
- Zip Code30030
Exterior
- Lot DescriptionOther
Additional Information
- Days on Market28
Price Change History for 448 E Lake Drive, Decatur, GA (MLS® #10704737)
| Date | Details | Price | Change |
|---|---|---|---|
| Active | – | – | |
| Price Change | – | – | |
| Price Reduced | $699,900 | $50,100 (6.68%) | |
| Active | – | – | |
| Price Change (from New) | – | – | |
| Show More (1) | |||
| Price Reduced (from $800,000) | $750,000 | $50,000 (6.25%) | |
The data relating to real estate for sale on this web site comes in part from the Broker Reciprocity Program of Georgia MLS. Real estate listings held by brokerage firms other than Go Realty Of Georgia & Alabam are marked with the Broker Reciprocity logo and detailed information about them includes the name of the listing brokers.
The information being provided is for consumers' personal, non-commercial use and may not be used for any purpose other than to identify prospective properties consumers may be interested in purchasing. Information Deemed Reliable But Not Guaranteed.
The broker providing this data believes it to be correct, but advises interested parties to confirm them before relying on them in a purchase decision.
Copyright 2026 Georgia MLS. All rights reserved.
Listing information last updated on April 2nd, 2026 at 3:00am CDT.
















