Hi There! Is this Your First Time?
Did you know if you Register you have access to free search tools including the ability to save listings and property searches? Did you know that you can bypass the search altogether and have listings sent directly to your email address? Check out our how-to page for more info.
- Price$309,900
- Beds1
- Baths2
- SQ. Feet1,139
- Acres0.03
- Built1999
30 5th Street Ne 101, Atlanta
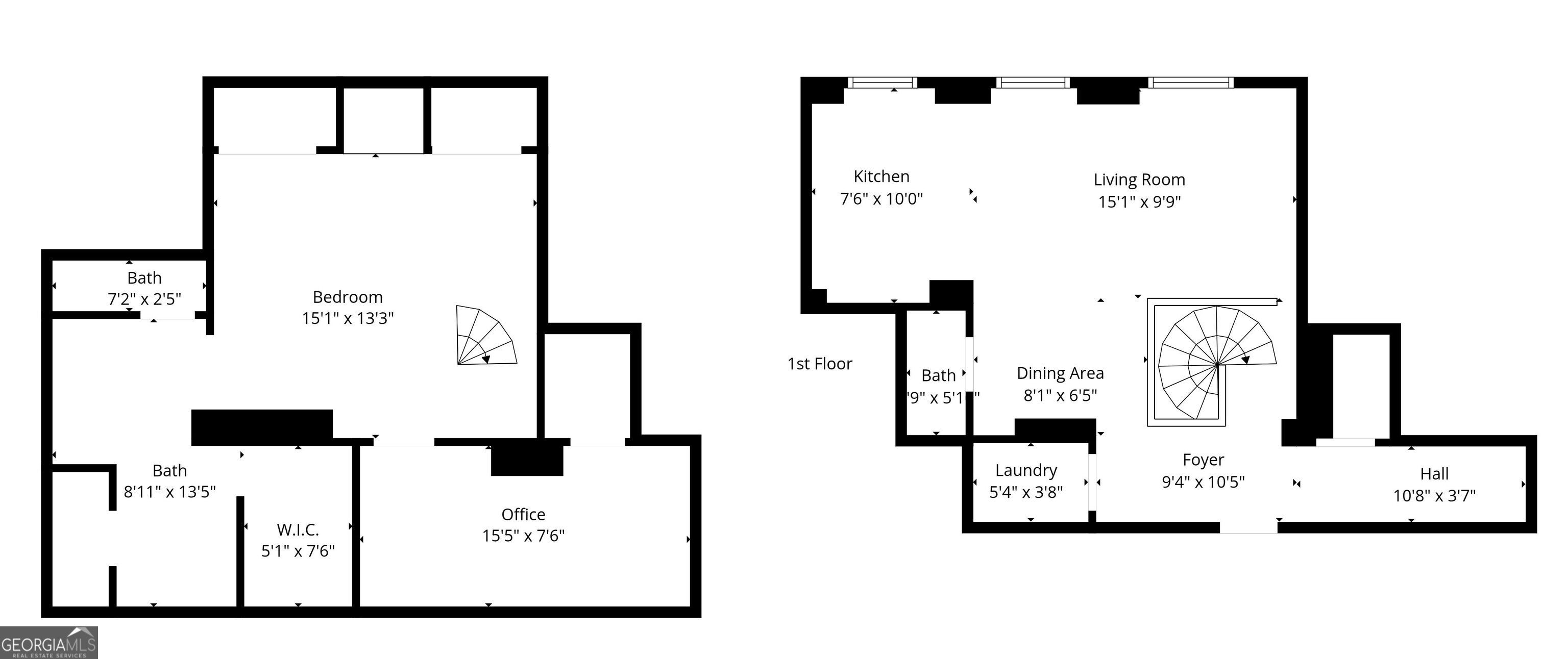
Perfectly positioned for GEORGIA TECH faculty, students, and parents-while offering the walkability and connectivity that make Midtown living so desirable! This unique two-level condo offers rare flexibility in a prime Midtown setting. Enjoy easy access to nearby bike trails, green spaces, and the Midtown MARTA Station, providing a direct connection to Hartsfield-Jackson Airport and beyond. Discover this beautifully preserved residence in one of Midtown's most historic buildings - The Biltmore. A rare opportunity to own a piece of Atlanta's architectural history! Built in 1924 by the same architectural firm behind New York's iconic Waldorf Astoria, this landmark was once the vibrant heart of Atlanta's business and social scene! After undergoing a total renovation in 1999, The Biltmore is now listed on the National Register of Historic Places. Each residence is unique with this home having two levels and a separate OFFICE area in the lower level alongside the bedroom/bath. The entrance to unit 101 is on the building's first floor and just a few steps from the main doors. Enter into a spacious, sunlit living room with an open kitchen featuring bar seating, granite counter tops and stainless-steel appliances. There's space for a separate dining area and this level has a half bathroom, laundry room (will fit full size washer/dryer) along with a handy separate storage area off the entrance, perfect for stowing bikes and other items! A circular staircase takes you down to the bedroom and full bathroom. The bathroom was just renovated with new flooring, beautiful new shower tile and fixtures and boasts a large walk-in closet. Separate office also features the 'hidden door' that will take you through to the communal laundry area but is also the entrance for the lower-level furniture at move in time! The elevator goes down to this level, and it's a simple move in from there! Walking distance to Atlanta's "Midtown Mile" on Peachtree Street, and close to so many famous hot spots such as The Fox Theatre, High Museum of Art, Ga Tech, Piedmont Park & much more. Centrally located in Midtown you will enjoy world-class arts and entertainment, renowned restaurants, vibrant festivals and fantastic nightlife! Walking distance to 2 Marta Stations makes this location ideal for airport travel! Easy 5 minute walk to LA fitness and Publix! Dedicated bike lanes all around the neighborhood! Gated parking is next to the building and this residence comes with one deeded space. Rental cap is 25%, not quite there at time of writing so could be great investment property! Welcome home to The Biltmore! SUPER COMPETITIVE PRICING COMPARED TO NEARBY COMMUNITIES! MOTIVATED SELLER!
Essential Information
- MLS® #10704884
- Price$309,900
- Bedrooms1
- Bathrooms2.00
- Full Baths1
- Half Baths1
- Square Footage1,139
- Acres0.03
- Year Built1999
- TypeResidential
- Sub-TypeCondominium
- StyleBrick 4 Side
- StatusActive
Amenities
- UtilitiesCable Available, Electricity Available, Sewer Available
- Parking Spaces1
- ParkingAssigned
- ViewCity
- WaterfrontNo Dock Or Boathouse
Exterior
- Exterior FeaturesGarden
- Lot DescriptionLevel
- RoofComposition
- ConstructionBrick
- FoundationBlock
Additional Information
- Days on Market22
Community Information
- Address30 5th Street Ne 101
- SubdivisionBiltmore House
- CityAtlanta
- CountyFulton
- StateGA
- Zip Code30308
Interior
- Interior FeaturesBookcases, Walk-In Closet(s)
- AppliancesDishwasher, Disposal, Electric Water Heater
- HeatingElectric, Forced Air
- CoolingCeiling Fan(s), Central Air
- StoriesTwo
School Information
- ElementaryVirginia Highland
- MiddleDavid T Howard
- HighGrady
Listing Details
- Listing Provided Courtesy Of Coldwell Banker Realty
Price Change History for 30 5th Street Ne 101, Atlanta, GA (MLS® #10704884)
| Date | Details | Price | Change |
|---|---|---|---|
| Active (from New) | – | – |
The data relating to real estate for sale on this web site comes in part from the Broker Reciprocity Program of Georgia MLS. Real estate listings held by brokerage firms other than Go Realty Of Georgia & Alabam are marked with the Broker Reciprocity logo and detailed information about them includes the name of the listing brokers.
The information being provided is for consumers' personal, non-commercial use and may not be used for any purpose other than to identify prospective properties consumers may be interested in purchasing. Information Deemed Reliable But Not Guaranteed.
The broker providing this data believes it to be correct, but advises interested parties to confirm them before relying on them in a purchase decision.
Copyright 2026 Georgia MLS. All rights reserved.
Listing information last updated on March 28th, 2026 at 7:45pm CDT.
























