Hi There! Is this Your First Time?
Did you know if you Register you have access to free search tools including the ability to save listings and property searches? Did you know that you can bypass the search altogether and have listings sent directly to your email address? Check out our how-to page for more info.
- Price$389,000
- Beds3
- Baths3
- Acres0.67
- Built2026
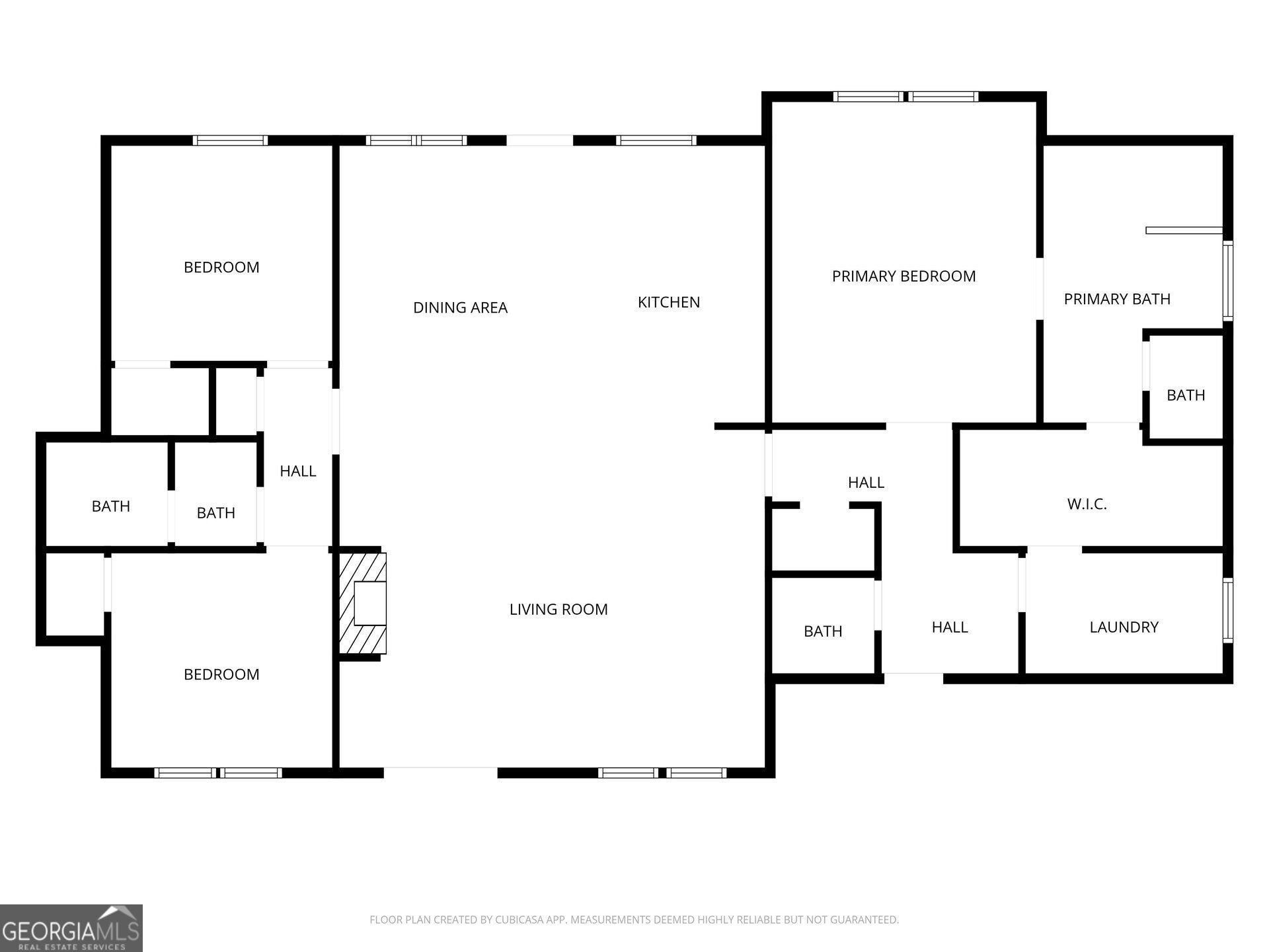
101 Bush Creek Way, Bremen
Welcome to this brand-new 3 bedroom, 2.5 bathroom ranch home perfectly situated on a spacious, level lot in the award-winning Bremen City School District. This home offers quality and thoughtful design throughout, featuring high ceilings, durable HardiPlank siding, wood front and back doors, and LVP flooring throughout the entire home. Step inside to a bright and spacious open-concept floor plan ideal for modern living. The kitchen is fully equipped with stainless steel appliances, white cabinetry, a large center island, and a perfectly placed window above the sink overlooking the backyard-bringing in natural light and a beautiful view. The primary suite is designed for convenience, with a walk-in closet that connects directly to the laundry room. The bathroom features dual vanities, a large tiled shower, and a separate tiled soaking tub. On the opposite side of the home, you'll find two additional generously sized bedrooms, offering privacy and comfort. Enjoy the outdoors in the large, flat backyard-perfect for entertaining, play, or relaxing. Don't miss your opportunity to live in the highly sought-after Bremen City School District-schedule your showing today!
Essential Information
- MLS® #10705664
- Price$389,000
- Bedrooms3
- Bathrooms3.00
- Full Baths2
- Half Baths1
- Acres0.67
- Year Built2026
- TypeResidential
- Sub-TypeSingle Family Residence
- StyleRanch, Brick/Frame
- StatusUnder Contract
Amenities
- UtilitiesWater Available, Other
- ParkingGarage, Garage Door Opener
Exterior
- Lot DescriptionLevel, Corner Lot
- RoofComposition
- ConstructionBrick, Other
- FoundationSlab
Additional Information
- Days on Market15
Community Information
- Address101 Bush Creek Way
- SubdivisionBush Creek
- CityBremen
- CountyHaralson
- StateGA
- Zip Code30110
Interior
- Interior FeaturesHigh Ceilings, Master On Main Level, Soaking Tub, Split Bedroom Plan, Walk-In Closet(s), Separate Shower
- AppliancesDishwasher, Microwave, Oven/Range (Combo), Refrigerator, Stainless Steel Appliance(s)
- HeatingCentral
- CoolingCentral Air
- FireplaceYes
- # of Fireplaces1
- FireplacesLiving Room
- StoriesOne
School Information
- ElementaryJones
- MiddleBremen Middle
- HighBremen
Listing Details
- Listing Provided Courtesy Of Flagstone Realty Group Llc
Price Change History for 101 Bush Creek Way, Bremen, GA (MLS® #10705664)
| Date | Details | Price | Change |
|---|---|---|---|
| Under Contract | – | – | |
| Active (from New) | – | – |
The data relating to real estate for sale on this web site comes in part from the Broker Reciprocity Program of Georgia MLS. Real estate listings held by brokerage firms other than Go Realty Of Georgia & Alabam are marked with the Broker Reciprocity logo and detailed information about them includes the name of the listing brokers.
The information being provided is for consumers' personal, non-commercial use and may not be used for any purpose other than to identify prospective properties consumers may be interested in purchasing. Information Deemed Reliable But Not Guaranteed.
The broker providing this data believes it to be correct, but advises interested parties to confirm them before relying on them in a purchase decision.
Copyright 2026 Georgia MLS. All rights reserved.
Listing information last updated on April 9th, 2026 at 1:46am CDT.









































