Hi There! Is this Your First Time?
Did you know if you Register you have access to free search tools including the ability to save listings and property searches? Did you know that you can bypass the search altogether and have listings sent directly to your email address? Check out our how-to page for more info.
- Price$459,990
- Beds3
- Baths4
- SQ. Feet1,893
- Acres2,599.00
- Built2026
104 Epperly Way, Tucker
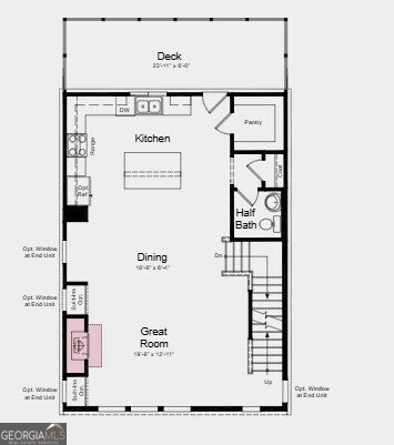
What's Special: Large Kitchen Island | Flat Lot | Oversized Garage | Close to Amenity | West Facing Lot. New Construction - April Completion! Built by America's Most Trusted Home Builder. Welcome to the Oconee at 104 Epperly Way in Chandler Run! This beautifully designed new three-story townhome blends comfort, style, and thoughtful living across every level. On the first floor, you enjoy easy access to the two-car garage and a private secondary bedroom with an attached bathroom, creating an ideal space for guests, a home office, or a quiet retreat. The main floor features an open concept kitchen that flows into the dining area and spacious great room, all opening to an oversized deck that is perfect for outdoor meals or relaxing in the fresh air. Upstairs, the bright primary suite offers a dual sink vanity, a large shower, and a generous walk-in closet, while an additional bedroom with its own bathroom and walk in closet adds flexibility. A centrally located laundry room completes the upper level for everyday ease. Nestled in vibrant Tucker, Chandler Run offers a private, peaceful retreat within the city. Enjoy fast access to I-85 and I-285 while benefiting from a secure, exclusive setting. Planned amenities include a pool, outdoor fire pit for gathering, a dog park, and more creating a welcoming space to relax, connect, and unwind. Additional Highlights Include: an electric fireplace in the great room. Photos are for representative purposes only. MLS#10708306
Essential Information
- MLS® #10708306
- Price$459,990
- Bedrooms3
- Bathrooms4.00
- Full Baths3
- Half Baths1
- Square Footage1,893
- Acres2,599.00
- Year Built2026
- TypeResidential
- Sub-TypeTownhouse
- StyleBrick Front
- StatusNew
Amenities
- UtilitiesUnderground Utilities
- Parking Spaces2
- ParkingAttached, Garage, Garage Door Opener
Exterior
- Lot DescriptionNone
- RoofComposition
- ConstructionOther
- FoundationSlab
Additional Information
- Days on Market1
Community Information
- Address104 Epperly Way
- SubdivisionChandler Run
- CityTucker
- CountyGwinnett
- StateGA
- Zip Code30084
Interior
- Interior FeaturesHigh Ceilings, Pulldown Attic Stairs, Tray Ceiling(s)
- AppliancesCooktop, Electric Water Heater, Other, Oven/Range (Combo)
- HeatingCentral, Electric, Forced Air, Zoned
- CoolingCentral Air, Zoned
- StoriesThree Or More
School Information
- ElementaryArcado
- MiddleTrickum
- HighParkview
Listing Details
- Listing Provided Courtesy Of Taylor Morrison Realty Of Georgia
The data relating to real estate for sale on this web site comes in part from the Broker Reciprocity Program of Georgia MLS. Real estate listings held by brokerage firms other than Go Realty Of Georgia & Alabam are marked with the Broker Reciprocity logo and detailed information about them includes the name of the listing brokers.
The information being provided is for consumers' personal, non-commercial use and may not be used for any purpose other than to identify prospective properties consumers may be interested in purchasing. Information Deemed Reliable But Not Guaranteed.
The broker providing this data believes it to be correct, but advises interested parties to confirm them before relying on them in a purchase decision.
Copyright 2026 Georgia MLS. All rights reserved.
Listing information last updated on March 12th, 2026 at 11:32am CDT.







































