Hi There! Is this Your First Time?
Did you know if you Register you have access to free search tools including the ability to save listings and property searches? Did you know that you can bypass the search altogether and have listings sent directly to your email address? Check out our how-to page for more info.
- Price$175,000
- Beds3
- Baths2
- Acres0.16
- Built1920
770 Cooper Street Sw, Atlanta
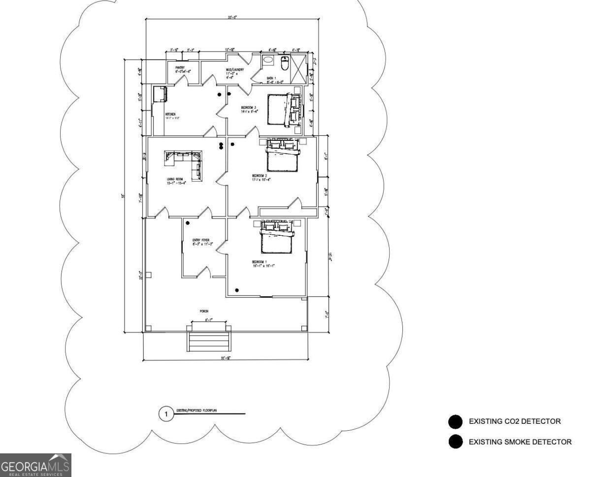
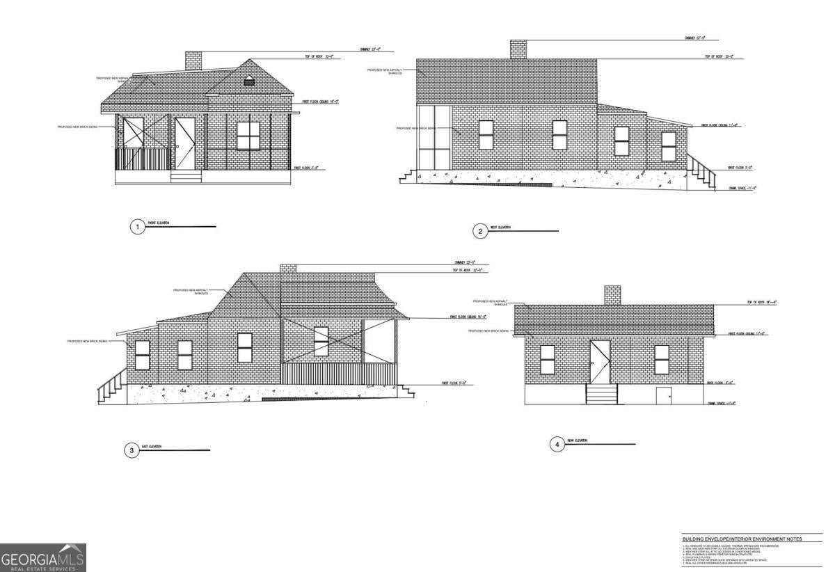
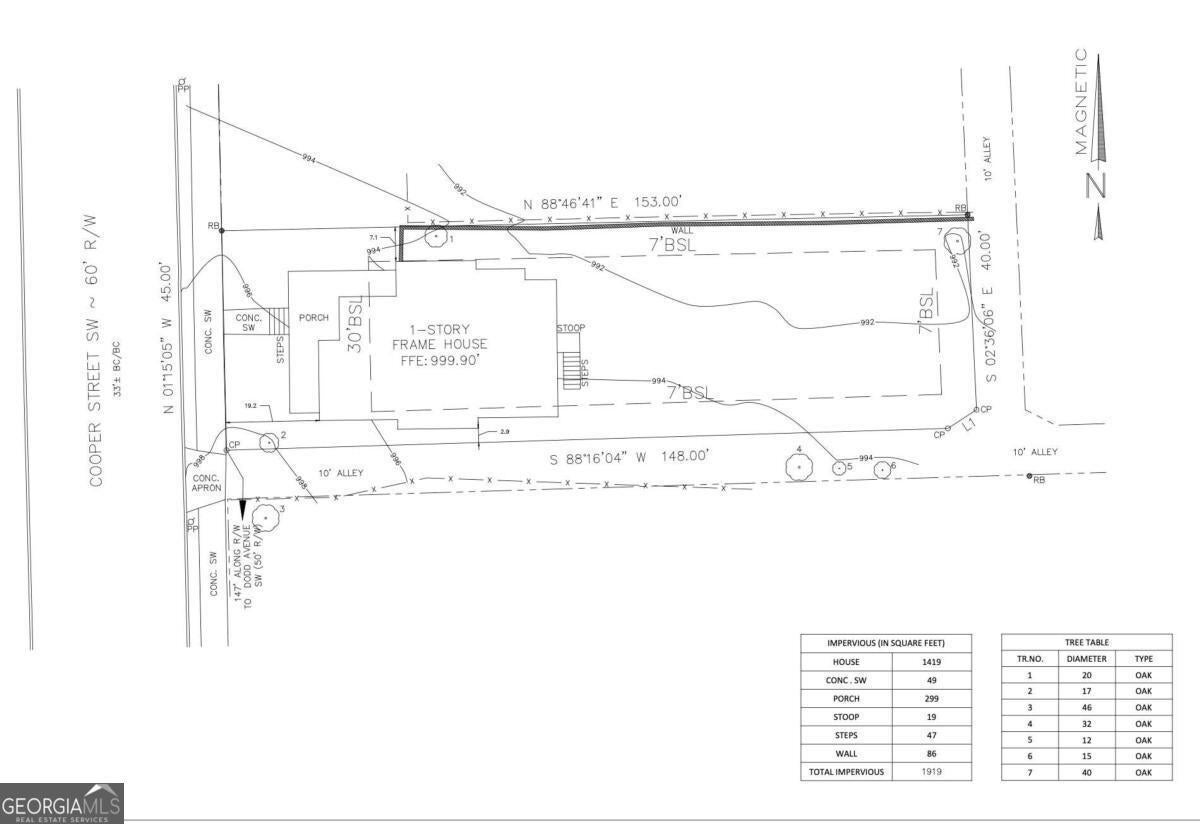
Rare opportunity to step into a renovation project with the hard work already done. This property is being sold with approved plans, completed survey, and active permits, allowing the next owner to begin construction immediately and skip months of design and approval timelines. The plans envision a beautiful transformation that enhances the character of the home while bringing it into modern living standards. For investors, builders, or visionaries looking for their next project, this property provides a clear path to create something truly special. Located in an area experiencing strong revitalization, the potential here is significant. With the planning and preparation already completed, the next owner simply needs to execute the vision and bring the project to life. Plans, survey, and permit documentation will be transferred with the sale. Property sold As-Is.
Essential Information
- MLS® #10711411
- Price$175,000
- Bedrooms3
- Bathrooms2.00
- Full Baths2
- Acres0.16
- Year Built1920
- TypeResidential
- Sub-TypeSingle Family Residence
- StyleTraditional
- StatusActive
Amenities
- UtilitiesNone
- ParkingNone
- ViewCity
Exterior
- Lot DescriptionLevel
- RoofComposition
- ConstructionWood Siding
- FoundationBlock
Additional Information
- Days on Market17
Community Information
- Address770 Cooper Street Sw
- SubdivisionMechanicsville
- CityAtlanta
- CountyFulton
- StateGA
- Zip Code30315
Interior
- Interior FeaturesHigh Ceilings
- AppliancesOther
- HeatingNone
- CoolingNone
- FireplaceYes
- # of Fireplaces1
- FireplacesFamily Room
- StoriesOne
School Information
- ElementaryDunbar
- MiddleKing
- HighMH Jackson Jr
Listing Details
- Listing Provided Courtesy Of Epique Realty
Price Change History for 770 Cooper Street Sw, Atlanta, GA (MLS® #10711411)
| Date | Details | Price | Change |
|---|---|---|---|
| Active (from New) | – | – |
The data relating to real estate for sale on this web site comes in part from the Broker Reciprocity Program of Georgia MLS. Real estate listings held by brokerage firms other than Go Realty Of Georgia & Alabam are marked with the Broker Reciprocity logo and detailed information about them includes the name of the listing brokers.
The information being provided is for consumers' personal, non-commercial use and may not be used for any purpose other than to identify prospective properties consumers may be interested in purchasing. Information Deemed Reliable But Not Guaranteed.
The broker providing this data believes it to be correct, but advises interested parties to confirm them before relying on them in a purchase decision.
Copyright 2026 Georgia MLS. All rights reserved.
Listing information last updated on March 30th, 2026 at 7:15pm CDT.



