Hi There! Is this Your First Time?
Did you know if you Register you have access to free search tools including the ability to save listings and property searches? Did you know that you can bypass the search altogether and have listings sent directly to your email address? Check out our how-to page for more info.
- Price$419,900
- Beds4
- Baths3
- SQ. Feet1,700
- Acres0.24
- Built1951
682 Quillian Avenue, Decatur
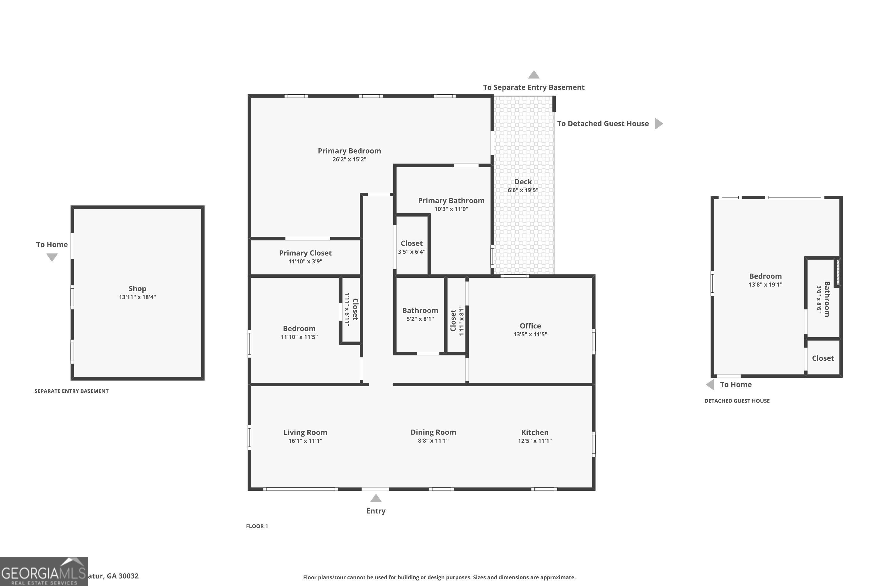
INCOME POTENTIAL AND MORE! This updated bungalow exudes unbeatable charm and is in the perfect intown location. Located minutes from Grant Park, East Atlanta Village, and East Lake Golf Club, this home combines timeless charm and thoughtful modern upgrades. Even better, the home is priced BELOW ITS RECENT APPRAISAL, offering exceptional value in one of Atlanta's fastest growing areas. This home offers a number of upgrades. The moment you enter you're greeted with beautiful HARDWOOD FLOORS and a RENOVATED KITCHEN. The layout is open and inviting, and the contemporary finishes create a bright living space. The spacious primary suite includes a walk-in closet and a beautifully designed spa-inspired bathroom, offering a relaxing retreat at the end of the day. Secondary bedrooms are well-sized and filled with natural light. Step outside to a fully fenced backyard, ideal for entertaining, pets, or enjoying quiet evenings outdoors. A standout feature of the property is the SEPARATE EXTERIOR GUEST SUITE, complete with its own PRIVATE BATHROOM perfect for generating RENTAL INCOME, hosting guests, creating a home office, or setting up a private studio space. With its thoughtful renovation, flexible living options, and prime proximity to Buena Vista Lake at Barker Bryant Memorial Park, this home is the ideal choice for anyone looking for an affordable home in the East Lake area.
Essential Information
- MLS® #10712040
- Price$419,900
- Bedrooms4
- Bathrooms3.00
- Full Baths3
- Square Footage1,700
- Acres0.24
- Year Built1951
- TypeResidential
- Sub-TypeSingle Family Residence
- StyleRanch
- StatusUnder Contract
Amenities
- UtilitiesCable Available, Electricity Available, Natural Gas Available, Phone Available, Sewer Available, Underground Utilities, Water Available
- Parking Spaces2
- ParkingParking Pad
Exterior
- Lot DescriptionLevel, Private
- RoofComposition
- ConstructionBrick
Additional Information
- Days on Market2
Community Information
- Address682 Quillian Avenue
- SubdivisionEast Lake
- CityDecatur
- CountyDeKalb
- StateGA
- Zip Code30032
Interior
- Interior FeaturesDouble Vanity, High Ceilings, Master On Main Level, Separate Shower, Soaking Tub, Walk-In Closet(s)
- AppliancesDishwasher, Disposal, Oven/Range (Combo), Refrigerator, Stainless Steel Appliance(s)
- HeatingForced Air, Natural Gas
- CoolingCeiling Fan(s), Central Air
- StoriesOne
School Information
- ElementaryRonald E McNair
- MiddleMcnair
- HighMcnair
Listing Details
- Listing Provided Courtesy Of Bolst, Inc.
Price Change History for 682 Quillian Avenue, Decatur, GA (MLS® #10712040)
| Date | Details | Price | Change |
|---|---|---|---|
| Under Contract | – | – | |
| New (from Coming Soon) | – | – |
The data relating to real estate for sale on this web site comes in part from the Broker Reciprocity Program of Georgia MLS. Real estate listings held by brokerage firms other than Go Realty Of Georgia & Alabam are marked with the Broker Reciprocity logo and detailed information about them includes the name of the listing brokers.
The information being provided is for consumers' personal, non-commercial use and may not be used for any purpose other than to identify prospective properties consumers may be interested in purchasing. Information Deemed Reliable But Not Guaranteed.
The broker providing this data believes it to be correct, but advises interested parties to confirm them before relying on them in a purchase decision.
Copyright 2026 Georgia MLS. All rights reserved.
Listing information last updated on April 3rd, 2026 at 9:30pm CDT.































































