Hi There! Is this Your First Time?
Did you know if you Register you have access to free search tools including the ability to save listings and property searches? Did you know that you can bypass the search altogether and have listings sent directly to your email address? Check out our how-to page for more info.
- Price$409,900
- Beds3
- Baths3
- SQ. Feet2,084
- Acres0.80
- Built1988
1483 Heritage Way, Acworth
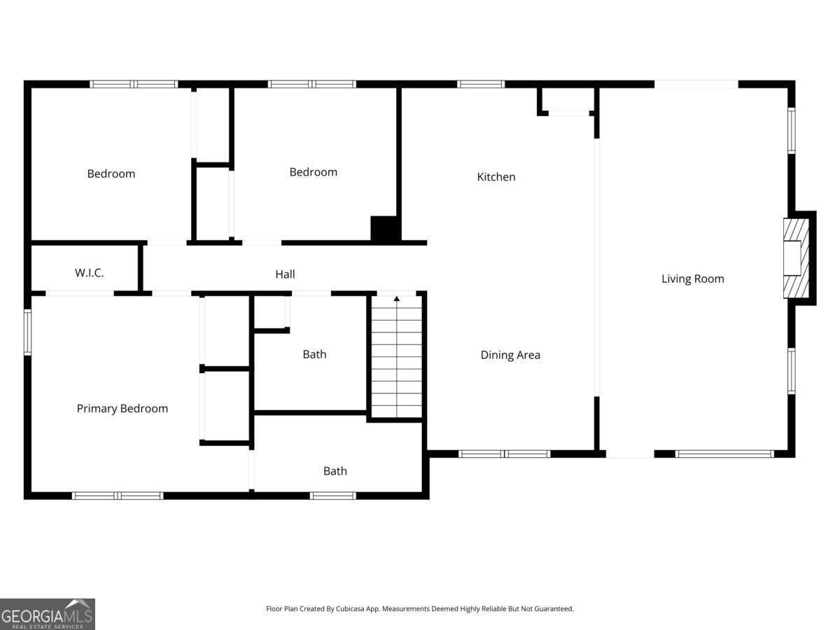
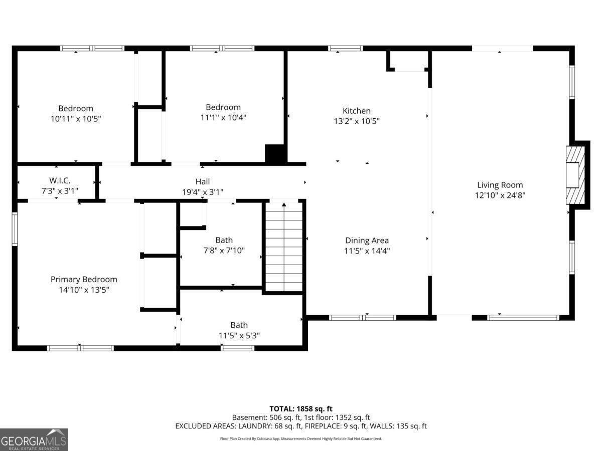
Welcome to this charming raised ranch-style home on a finished basement in Acworth-with no HOA! This beautifully updated 3-bedroom, 3-bath residence offers exceptional curb appeal from the moment you arrive. A long, welcoming driveway leads to a well-setback home and provides ample additional parking-perfect for multiple vehicles or even a recreational vehicle. The exterior features a brand-new architectural roof, updated windows, and newer 6" gutters and downspouts, offering both peace of mind and enhanced curb appeal. The inviting screened front porch overlooks the picturesque front yard-an ideal spot to enjoy your morning coffee. Inside, you'll find an open-concept layout highlighted by a modernized island kitchen featuring 42" white cabinetry that extends to the ceiling, a classic subway tile backsplash, and beautiful solid surface countertops-all overlooking a cozy family room with a stunning stacked stone fireplace. The main living areas showcase gleaming site-finished hardwood floors, complemented by fresh interior paint, recessed lighting, and updated fixtures that create a bright and welcoming atmosphere. Step outside to the oversized rear deck, conveniently located just off the kitchen-perfect for entertaining or simply relaxing while taking in the peaceful views of your expansive 3/4-acre lot. The primary suite offers a private retreat with a fully updated ensuite bathroom featuring an intricately tiled tub surround, double vanity, and solid surface countertops. Additional bedrooms are generously sized and share a beautifully updated hall bath on the main level. Downstairs, the fully finished basement provides valuable flex space, including a private office and full bathroom-ideal for remote work, guests, or a potential in-law suite. Conveniently located near top-rated schools, shopping, dining, and easy access to I-575, this home offers the perfect blend of comfort, functionality, and location. This is one you don't want to miss.
Essential Information
- MLS® #10712919
- Price$409,900
- Bedrooms3
- Bathrooms3.00
- Full Baths3
- Square Footage2,084
- Acres0.80
- Year Built1988
- TypeResidential
- Sub-TypeSingle Family Residence
- StyleRanch, Traditional
- StatusUnder Contract
Amenities
- UtilitiesCable Available, Electricity Available, Natural Gas Available, Phone Available, Sewer Available, Underground Utilities, Water Available, High Speed Internet
- Parking Spaces2
- ParkingAttached, Garage, RV/Boat Parking, Basement
- WaterfrontNo Dock Or Boathouse, Creek
Exterior
- Lot DescriptionPrivate, Cul-De-Sac
- WindowsDouble Pane Windows
- RoofComposition
- ConstructionWood Siding
- FoundationSlab, Block
Additional Information
- Days on Market3
Community Information
- Address1483 Heritage Way
- SubdivisionHeritage Place
- CityAcworth
- CountyCherokee
- StateGA
- Zip Code30102
Interior
- Interior FeaturesDouble Vanity, Master On Main Level, Rear Stairs
- AppliancesDishwasher, Disposal, Microwave, Refrigerator, Gas Water Heater
- HeatingNatural Gas, Zoned
- CoolingCentral Air, Zoned
- FireplaceYes
- # of Fireplaces1
- FireplacesGas Starter, Living Room, Masonry
- StoriesOne
School Information
- ElementaryBoston
- MiddleBooth
- HighEtowah
Listing Details
- Listing Provided Courtesy Of Sterling Realty Partners, Inc.
Price Change History for 1483 Heritage Way, Acworth, GA (MLS® #10712919)
| Date | Details | Price | Change |
|---|---|---|---|
| Under Contract (from New) | – | – |
The data relating to real estate for sale on this web site comes in part from the Broker Reciprocity Program of Georgia MLS. Real estate listings held by brokerage firms other than Go Realty Of Georgia & Alabam are marked with the Broker Reciprocity logo and detailed information about them includes the name of the listing brokers.
The information being provided is for consumers' personal, non-commercial use and may not be used for any purpose other than to identify prospective properties consumers may be interested in purchasing. Information Deemed Reliable But Not Guaranteed.
The broker providing this data believes it to be correct, but advises interested parties to confirm them before relying on them in a purchase decision.
Copyright 2026 Georgia MLS. All rights reserved.
Listing information last updated on April 9th, 2026 at 8:31am CDT.





























































