Hi There! Is this Your First Time?
Did you know if you Register you have access to free search tools including the ability to save listings and property searches? Did you know that you can bypass the search altogether and have listings sent directly to your email address? Check out our how-to page for more info.
- Price$2,500
- Beds3
- Baths4
- SQ. Feet1,818
- Acres0.01
- Built2009
1805 Liberty Parkway Nw, Atlanta
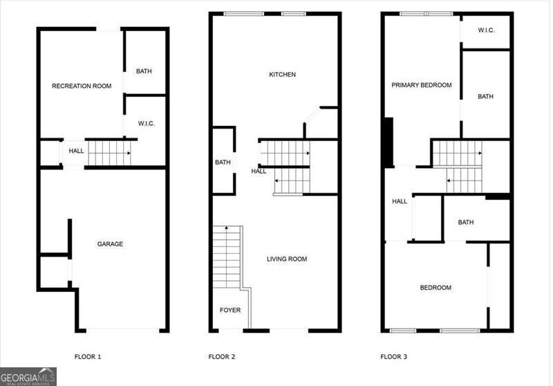
Welcome to this beautifully maintained 3 bedroom, 3.5 bath townhome in the highly desirable Liberty Park community in Atlanta, GA 30318, available in West Midtown Atlanta. This thoughtfully designed floor plan offers hardwood-style flooring, vaulted ceilings, and an open-concept layout that feels both spacious and inviting. The kitchen is a standout feature with a large island, ample counter space, and a dedicated dining area that flows seamlessly into the main living space, making it perfect for everyday living and entertaining. Each bedroom includes its own private en-suite bath along with spacious closets, providing comfort and privacy for everyone. Step outside to a private deck overlooking a peaceful wooded view, giving you a quiet place to relax and recharge. Parking is easy with a one car garage, driveway space for an additional vehicle, and nearby guest parking. A washer and dryer are also included for added convenience. Located just minutes from Publix and Kroger, and with quick access to everything West Midtown has to offer, you are right in the middle of great dining, shopping, and entertainment. If you are looking for space, style, and a prime location, this one delivers. Homes in Liberty Park lease quickly, so do not miss your opportunity.
Essential Information
- MLS® #10714016
- Price$2,500
- Bedrooms3
- Bathrooms4.00
- Full Baths3
- Half Baths1
- Square Footage1,818
- Acres0.01
- Year Built2009
- TypeResidential Lease
- Sub-TypeTownhouse
- StyleTraditional
- StatusNew
Amenities
- UtilitiesCable Available, Electricity Available
- ParkingAssigned, Garage, Garage Door Opener, Over 1 Space per Unit
- ViewCity
Exterior
- Exterior FeaturesOther
- Lot DescriptionOther, Level
- RoofComposition
- ConstructionConcrete, Aluminum Siding
Additional Information
- Days on Market2
Community Information
- Address1805 Liberty Parkway Nw
- SubdivisionLiberty Park
- CityAtlanta
- CountyFulton
- StateGA
- Zip Code30318
Interior
- Interior FeaturesVaulted Ceiling(s)
- AppliancesDishwasher
- HeatingSteam
- CoolingCeiling Fan(s), Central Air, Electric
- StoriesThree Or More
School Information
- ElementaryBolton
- MiddleSutton
- HighNorth Atlanta
Listing Details
- Listing Provided Courtesy Of Atlanta Fine Homes - Sotheby's Int'l
Price Change History for 1805 Liberty Parkway Nw, Atlanta, GA (MLS® #10714016)
| Date | Details | Price | Change |
|---|---|---|---|
| New (from Coming Soon) | – | – |
The data relating to real estate for sale on this web site comes in part from the Broker Reciprocity Program of Georgia MLS. Real estate listings held by brokerage firms other than Go Realty Of Georgia & Alabam are marked with the Broker Reciprocity logo and detailed information about them includes the name of the listing brokers.
The information being provided is for consumers' personal, non-commercial use and may not be used for any purpose other than to identify prospective properties consumers may be interested in purchasing. Information Deemed Reliable But Not Guaranteed.
The broker providing this data believes it to be correct, but advises interested parties to confirm them before relying on them in a purchase decision.
Copyright 2026 Georgia MLS. All rights reserved.
Listing information last updated on March 30th, 2026 at 7:01pm CDT.



























