Hi There! Is this Your First Time?
Did you know if you Register you have access to free search tools including the ability to save listings and property searches? Did you know that you can bypass the search altogether and have listings sent directly to your email address? Check out our how-to page for more info.
- Price$365,000
- Beds3
- Baths3
- SQ. Feet2,916
- Acres0.29
- Built1954
2626 Habersham Drive, Decatur
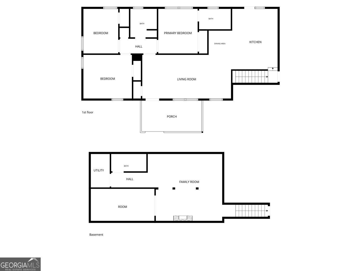
This 3 bed/3 bath craftsman ranch is thoughtfully renovated. With Magnolia home design style, this home comes with a fully finished basement and sits on a third of an acre. Featuring a bright, open floor plan with beautiful shiplap walls in the kitchen, breakfast bar, custom cabinets, stone countertops, built-in wine rack and French doors that overlook the patio and spacious gated backyard. The primary suite is on the main level with a custom tiled bathroom and there are 2 additional bedrooms with a full bathroom. This home also comes with a spacious basement that can be considered as a 4th bedroom, bonus room, media room, and contains a full bath and laundry.
Essential Information
- MLS® #10717151
- Price$365,000
- Bedrooms3
- Bathrooms3.00
- Full Baths3
- Square Footage2,916
- Acres0.29
- Year Built1954
- TypeResidential
- Sub-TypeSingle Family Residence
- StyleRanch
- StatusNew
Amenities
- UtilitiesElectricity Available, Natural Gas Available, Sewer Available, Water Available
- Parking Spaces3
- ParkingParking Pad, Side/Rear Entrance, Kitchen Level
- WaterfrontNo Dock Or Boathouse
Exterior
- Exterior FeaturesWater Feature, Gas Grill, Sprinkler System
- Lot DescriptionCorner Lot, Private
- WindowsDouble Pane Windows, Window Treatments
- RoofComposition
- ConstructionBrick
- FoundationSlab
Additional Information
- Days on Market1
Community Information
- Address2626 Habersham Drive
- SubdivisionHABERSHAM HILL
- CityDecatur
- CountyDeKalb
- StateGA
- Zip Code30032
Interior
- Interior FeaturesMaster On Main Level, Tile Bath
- AppliancesDishwasher, Microwave, Refrigerator, Dryer, Disposal, Washer
- HeatingCentral
- CoolingCentral Air
- FireplacesOther
- StoriesOne
School Information
- ElementaryToney
- MiddleColumbia
- HighColumbia
Listing Details
- Listing Provided Courtesy Of Keller Williams West Atlanta
- Office Info404-981-6370
The data relating to real estate for sale on this web site comes in part from the Broker Reciprocity Program of Georgia MLS. Real estate listings held by brokerage firms other than Go Realty Of Georgia & Alabam are marked with the Broker Reciprocity logo and detailed information about them includes the name of the listing brokers.
The information being provided is for consumers' personal, non-commercial use and may not be used for any purpose other than to identify prospective properties consumers may be interested in purchasing. Information Deemed Reliable But Not Guaranteed.
The broker providing this data believes it to be correct, but advises interested parties to confirm them before relying on them in a purchase decision.
Copyright 2026 Georgia MLS. All rights reserved.
Listing information last updated on April 2nd, 2026 at 8:02am CDT.




















