Hi There! Is this Your First Time?
Did you know if you Register you have access to free search tools including the ability to save listings and property searches? Did you know that you can bypass the search altogether and have listings sent directly to your email address? Check out our how-to page for more info.
- Price$749,900
- Beds5
- Baths5
- SQ. Feet3,027
- Acres1.00
- Built2026
5155 Reece Run, Cumming
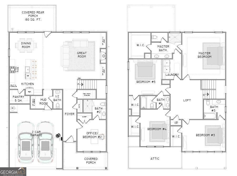
From the 2024 Community of the Year award winning builder, David Patterson Homes, Reece Run offers large estate lots with plenty of space between homes and no HOA. Imagine building your dream life on a spectacular 1-acre flat and entirely usable lot. David Patterson Homes presents the spacious RHETT PLAN (A elevation), a spacious and thoughtfully designed 5-bedroom, 4.5-bath residence. As you enter through the grand 8' entry door, you'll be greeted by an open-concept floor plan. The heart of the home is a chef's dream kitchen, boasting custom shaker cabinets, pristine quartz countertops, and a large central island perfect for gathering and entertaining. A convenient walk-in pantry seamlessly connects to the kitchen and eat-in kitchen making dinner parties a breeze. The main floor offers a private, dedicated office space or guest suite, complete with its own bathroom and closet. Upstairs, the luxurious owner's suite provides a peaceful retreat with a spa-like bath featuring a separate garden tub and tiled shower. A second-floor laundry room is intelligently designed for easy access from both the owner's closet and the hallway. With every bedroom having direct access to a bathroom, this home provides comfort and convenience for all. The exterior is just as functional, featuring a two-car garage for ample storage. This home is is under construction with an estimated completion date of July 2026.
Essential Information
- MLS® #10720661
- Price$749,900
- Bedrooms5
- Bathrooms5.00
- Full Baths4
- Half Baths1
- Square Footage3,027
- Acres1.00
- Year Built2026
- TypeResidential
- Sub-TypeSingle Family Residence
- StyleOther
- StatusNew
Amenities
- UtilitiesElectricity Available, Water Available
- Parking Spaces6
- ParkingGarage
Exterior
- Exterior FeaturesOther
- Lot DescriptionLevel
- WindowsDouble Pane Windows
- RoofComposition
- ConstructionConcrete
- FoundationSlab
Additional Information
- Days on Market10
Community Information
- Address5155 Reece Run
- SubdivisionReece Run
- CityCumming
- CountyForsyth
- StateGA
- Zip Code30041
Interior
- Interior FeaturesDouble Vanity
- AppliancesDishwasher
- HeatingForced Air
- CoolingCentral Air
- FireplaceYes
- # of Fireplaces1
- FireplacesFamily Room
- StoriesTwo
School Information
- ElementaryChestatee Primary
- MiddleNorth Forsyth
- HighEast Forsyth
Listing Details
- Listing Provided Courtesy Of Llane & Co.
- Office Info770-733-2571
The data relating to real estate for sale on this web site comes in part from the Broker Reciprocity Program of Georgia MLS. Real estate listings held by brokerage firms other than Go Realty Of Georgia & Alabam are marked with the Broker Reciprocity logo and detailed information about them includes the name of the listing brokers.
The information being provided is for consumers' personal, non-commercial use and may not be used for any purpose other than to identify prospective properties consumers may be interested in purchasing. Information Deemed Reliable But Not Guaranteed.
The broker providing this data believes it to be correct, but advises interested parties to confirm them before relying on them in a purchase decision.
Copyright 2026 Georgia MLS. All rights reserved.
Listing information last updated on April 8th, 2026 at 4:45am CDT.



