Hi There! Is this Your First Time?
Did you know if you Register you have access to free search tools including the ability to save listings and property searches? Did you know that you can bypass the search altogether and have listings sent directly to your email address? Check out our how-to page for more info.
- Price$2,800
- Acres2.00
- Built1965
1037 Pacific Avenue A, Bremen
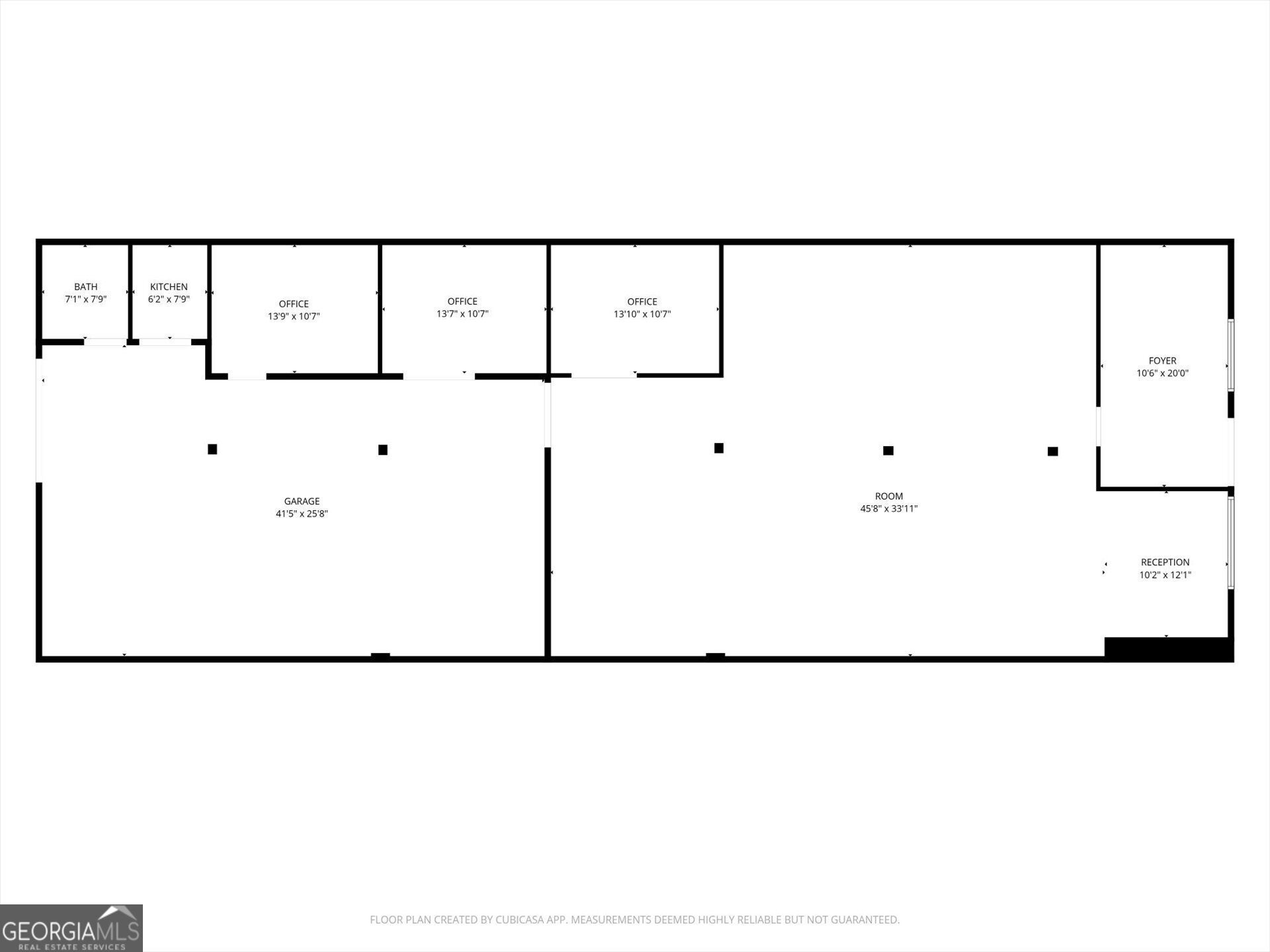
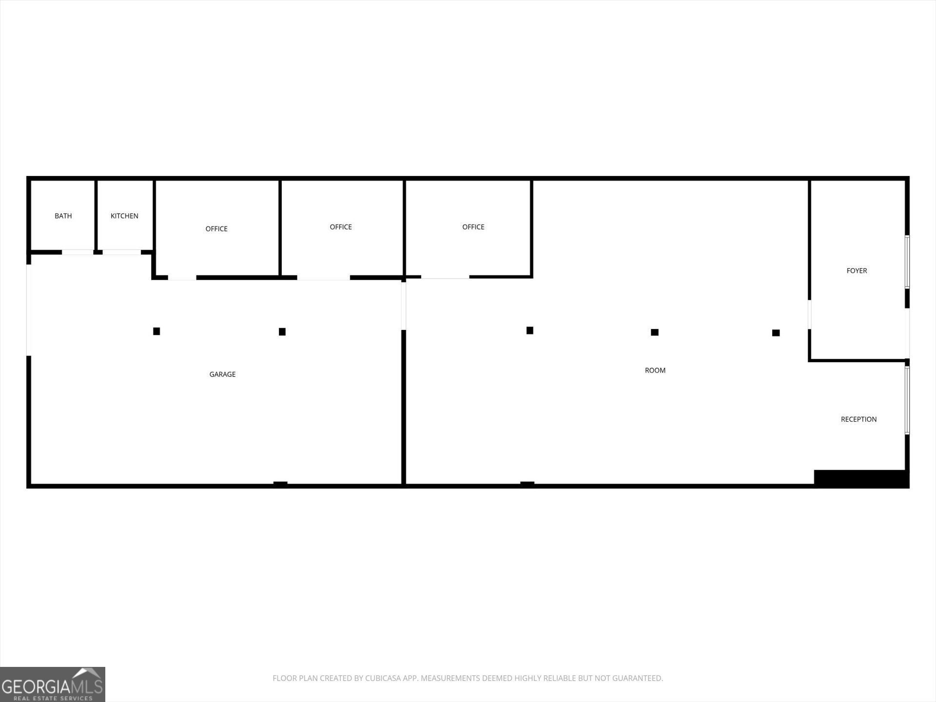
Storefront or Office Space available in Bremen, Georgia location on Highway 78!! Approximately 3800 sq. ft. Storefront suitable for various businesses! Secured fenced area in the back for added security. Ample storefront parking for customers and clients - Additional parking available for staff or overflow - High visibility location on Highway 78 This versatile space offers an excellent opportunity for businesses seeking a convenient and secure location with great visibility. Whether you're in retail or distribution, this property provides the infrastructure and amenities to support your operations. Don't miss out on this prime leasing opportunity in Bremen, Georgia! For leasing inquiries or to schedule a viewing, please contact Cindy Sellers!
Essential Information
- MLS® #10726544
- Price$2,800
- Bathrooms0.00
- Acres2.00
- Year Built1965
- TypeCommercial Lease
- StatusNew
Amenities
- UtilitiesOther
- ParkingPaved, Parking Lot
Exterior
- Lot DescriptionCity Lot, Level, Business Park
- ConstructionBrick, Concrete, Block
Listing Details
- Listing Provided Courtesy Of Keller Williams Realty Atl. Partners
Community Information
- Address1037 Pacific Avenue A
- SubdivisionNONE
- CityBremen
- CountyHaralson
- StateGA
- Zip Code30110
Interior
- HeatingCentral
- CoolingCentral Air, Electric
Additional Information
- Days on Market2
- ZoningCommercial
The data relating to real estate for sale on this web site comes in part from the Broker Reciprocity Program of Georgia MLS. Real estate listings held by brokerage firms other than Go Realty Of Georgia & Alabam are marked with the Broker Reciprocity logo and detailed information about them includes the name of the listing brokers.
The information being provided is for consumers' personal, non-commercial use and may not be used for any purpose other than to identify prospective properties consumers may be interested in purchasing. Information Deemed Reliable But Not Guaranteed.
The broker providing this data believes it to be correct, but advises interested parties to confirm them before relying on them in a purchase decision.
Copyright 2026 Georgia MLS. All rights reserved.
Listing information last updated on April 9th, 2026 at 1:46am CDT.

























