Hi There! Is this Your First Time?
Did you know if you Register you have access to free search tools including the ability to save listings and property searches? Did you know that you can bypass the search altogether and have listings sent directly to your email address? Check out our how-to page for more info.
- Price$1,100,000
- Acres5.76
1404-1406 Hamilton, LaGrange
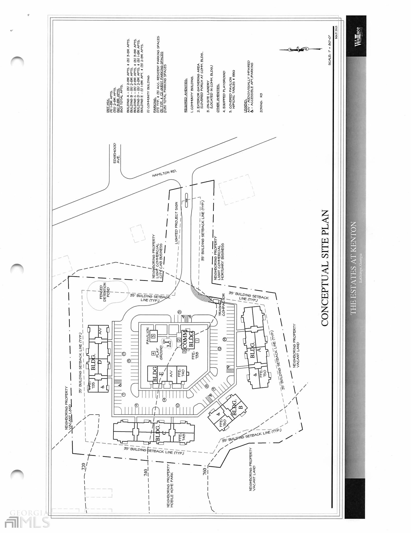
THIS PROPERTY HAS BEEN ZONED FOR MULTI FAMILY. THE SITE HAS BEEN DESIGNED WITH 60 UNITS (9@ 1 BR, 35 @ 2 BR, 16 @ 3 BR) AMENITIES 1. COMMUNITY BUILDING, 2. EXTERIOR GATHERING AREA, 3. ON SITE LAUNDRY, 4. EQUIPPED PLAYGROUNDS, 5. COVERED PAVILION WITH PICNIC TABLES & BBQ. ADDITIONAL CONTIGUIOUS ACRES CAN BE ADDED UP TO A TOTAL OF 17.5 ACRES THIS PROPERTY HAS FRONTAGE ON THE WIDENING DOT PROJECT OF HAMILTON ST AND GOES ALL THE WAY THROUGH TO WHITESVILLE ST WITH 628.77 FEET OF ROAD FRONTAGE.
Essential Information
- MLS® #20006811
- Price$1,100,000
- Bathrooms0.00
- Acres5.76
- TypeLand
- Sub-TypeResidential Lot
- StatusActive
Amenities
- UtilitiesCable Available, Electricity Available, High Speed Internet, Natural Gas Available, Sewer Available, Phone Available, Water Available
School Information
- ElementaryClearview
- MiddleLong Cane
- HighTroup County
Listing Details
- Listing Provided Courtesy Of Stribling-dupree Rlty & Appraisal
Community Information
- Address1404-1406 Hamilton
- SubdivisionMALLORY
- CityLaGrange
- CountyTroup
- StateGA
- Zip Code30241
Exterior
- Lot DescriptionCity Lot
Additional Information
- Days on Market1095
Price Change History for 1404-1406 Hamilton, LaGrange, GA (MLS® #20006811)
| Date | Details | Price | Change |
|---|---|---|---|
| Active | – | – | |
| Back On Market | – | – | |
| Under Contract | – | – | |
| Active | – | – | |
| Price Change | – | – | |
| Show More (6) | |||
| Price Increased | $1,100,000 | $259,500 (30.87%) | |
| Active | – | – | |
| Price Change | – | – | |
| Price Increased | $840,500 | $265,000 (46.05%) | |
| Active (from New) | – | – | |
| Price Increased (from $460,000) | $575,500 | $115,500 (25.11%) | |
The data relating to real estate for sale on this web site comes in part from the Broker Reciprocity Program of Georgia MLS. Real estate listings held by brokerage firms other than Go Realty Of Georgia & Alabam are marked with the Broker Reciprocity logo and detailed information about them includes the name of the listing brokers.
The information being provided is for consumers' personal, non-commercial use and may not be used for any purpose other than to identify prospective properties consumers may be interested in purchasing. Information Deemed Reliable But Not Guaranteed.
The broker providing this data believes it to be correct, but advises interested parties to confirm them before relying on them in a purchase decision.
Copyright 2025 Georgia MLS. All rights reserved.
Listing information last updated on December 18th, 2025 at 1:15am CST.


