Hi There! Is this Your First Time?
Did you know if you Register you have access to free search tools including the ability to save listings and property searches? Did you know that you can bypass the search altogether and have listings sent directly to your email address? Check out our how-to page for more info.
- Price$1,278,000
- Beds5
- Baths6
- SQ. Feet5,383
- Acres0.92
- Built2025
2596 Camp Mitchell Road, Grayson
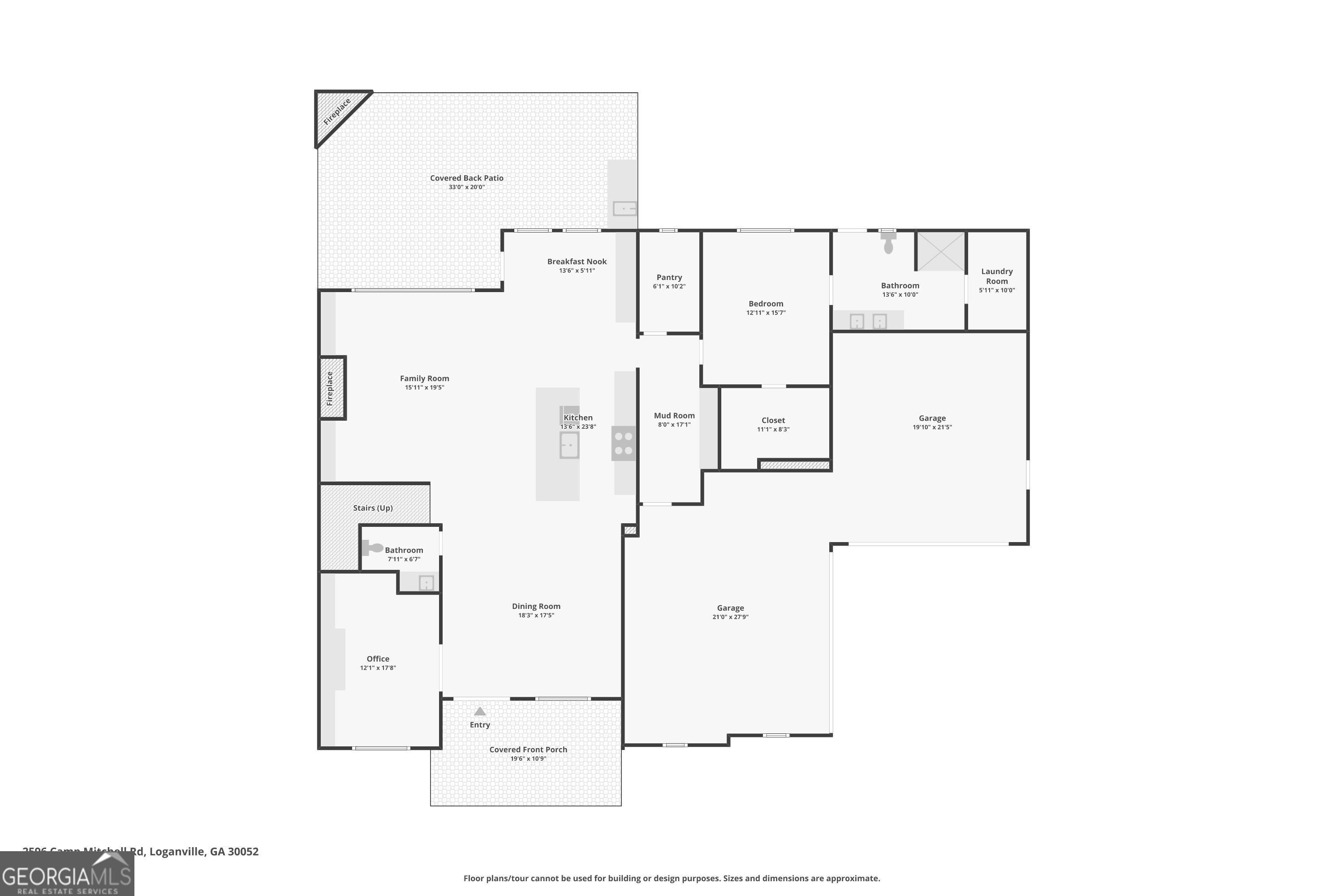
Just Completed 3/25/26 and photos added!! This stunning new construction estate delivers an amazing in-law/ guest suite on the main and very large primary bedroom and bathroom upstairs, inviting you to experience refined living where classic architecture meets modern sophistication. Check out this floorplan it is one of the most desired. Showcasing exceptional craftsmanship and refined finishes throughout, this custom home is designed for both entertaining and everyday living. From the moment you enter, you're greeted by a light-filled open layout featuring soaring ceilings, wide-plank hardwoods, designer lighting, and detailed millwork that create an atmosphere of understated luxury. At the heart of the home is a stunning great room with a statement fireplace that opens seamlessly to the chef's kitchen, complete with an oversized quartz waterfall island, custom cabinetry, porcelain countertops, designer backsplash, and a walk-in pantry with built-ins. An upgraded appliance package will elevate the kitchen's design, offering the perfect balance of beauty and functionality. The formal dining room and breakfast area overlook the covered patio, ideal for year-round gatherings. The main-level in-law suite offers a private retreat with a spacious ensuite bath and walk-in closet-perfect for extended family or guests. A dedicated office, elegant guest bath, functional mudroom, and four-car garage with insulated walls, auto openers, and 220V EV outlets complete the first floor. Upstairs, the primary suite is a luxurious haven featuring a private fireplace, spa-style bath with soaking tub, frameless glass shower, dual vanities, and a custom walk-in closet with built-ins. A media loft with fireplace and wet bar provides the perfect setting for movie nights or casual entertaining. Three additional bedrooms each include walk-in closets and ensuite or Jack-and-Jill baths, while a second laundry room adds convenience. Outdoor living is equally impressive with four-sided brick construction, professional landscaping, irrigation system, and a level backyard ideal for a future pool. The covered patio creates an inviting space for relaxing or entertaining. Energy-efficient features include foam insulation, zoned HVAC, tankless water heater, and ENERGY STAR windows. This home enjoys an ideal location in Grayson, offering the perfect balance of small-town charm and everyday convenience. Just minutes from Downtown Grayson, residents can enjoy a walkable local scene with cafes, neighborhood restaurants, and community gathering spots like Grayson Sweet Home Cafe, Guero Mex Grill, and Dante's Pizzeria & Trattoria. Outdoor lovers will appreciate being close to Tribble Mill Park, George Pierce Park, and the scenic Ivy Creek Greenway, offering trails, fishing lakes, and wide-open green space for walking, biking, and relaxing. Ideally located near Braselton Highway, Sugarloaf Parkway, and I-85, the home provides easy access to Atlanta and surrounding areas, along with premier shopping and dining at The Shoppes at Webb Gin and the Mall of Georgia. With nearby Downtown Lawrenceville, Suwanee Town Center, and Downtown Duluth offering festivals, parks, and year-round community events, plus access to top-rated Gwinnett County schools, this location delivers a lifestyle that blends convenience, recreation, and community in one of the area's most desirable settings.
Essential Information
- MLS® #10639015
- Price$1,278,000
- Bedrooms5
- Bathrooms6.00
- Full Baths5
- Half Baths1
- Square Footage5,383
- Acres0.92
- Year Built2025
- TypeResidential
- Sub-TypeSingle Family Residence
- StyleBrick 4 Side, Other
- StatusActive
Amenities
- UtilitiesCable Available, Electricity Available, High Speed Internet, Natural Gas Available, Phone Available, Sewer Available, Water Available
- Parking Spaces4
- ParkingGarage, Garage Door Opener, Kitchen Level, Side/Rear Entrance
Exterior
- Lot DescriptionLevel
- WindowsDouble Pane Windows, Window Treatments
- RoofComposition
- ConstructionBrick
- FoundationSlab
Additional Information
- Days on Market149
Community Information
- Address2596 Camp Mitchell Road
- SubdivisionNone
- CityGrayson
- CountyGwinnett
- StateGA
- Zip Code30017
Interior
- Interior FeaturesDouble Vanity, Master On Main Level, Walk-In Closet(s), In-Law Floorplan, Wet Bar
- AppliancesDishwasher, Double Oven, Microwave
- HeatingCentral
- CoolingCeiling Fan(s), Central Air
- FireplaceYes
- # of Fireplaces3
- FireplacesOther, Master Bedroom
- StoriesTwo
School Information
- ElementaryW J Cooper
- MiddleMcconnell
- HighArcher
Listing Details
- Listing Provided Courtesy Of Keller Williams Community Partners
Price Change History for 2596 Camp Mitchell Road, Grayson, GA (MLS® #10639015)
| Date | Details | Price | Change |
|---|---|---|---|
| Active | – | – | |
| Price Change | – | – | |
| Price Reduced (from $1,279,000) | $1,278,000 | $1,000 (0.08%) | |
| Active (from New) | – | – |
The data relating to real estate for sale on this web site comes in part from the Broker Reciprocity Program of Georgia MLS. Real estate listings held by brokerage firms other than Go Realty Of Georgia & Alabam are marked with the Broker Reciprocity logo and detailed information about them includes the name of the listing brokers.
The information being provided is for consumers' personal, non-commercial use and may not be used for any purpose other than to identify prospective properties consumers may be interested in purchasing. Information Deemed Reliable But Not Guaranteed.
The broker providing this data believes it to be correct, but advises interested parties to confirm them before relying on them in a purchase decision.
Copyright 2026 Georgia MLS. All rights reserved.
Listing information last updated on April 4th, 2026 at 6:30pm CDT.



















































