Hi There! Is this Your First Time?
Did you know if you Register you have access to free search tools including the ability to save listings and property searches? Did you know that you can bypass the search altogether and have listings sent directly to your email address? Check out our how-to page for more info.
- Price$425,250
- Beds4
- Baths4
- SQ. Feet2,880
- Acres0.21
- Built2026
71 Cochin Drive, Statham
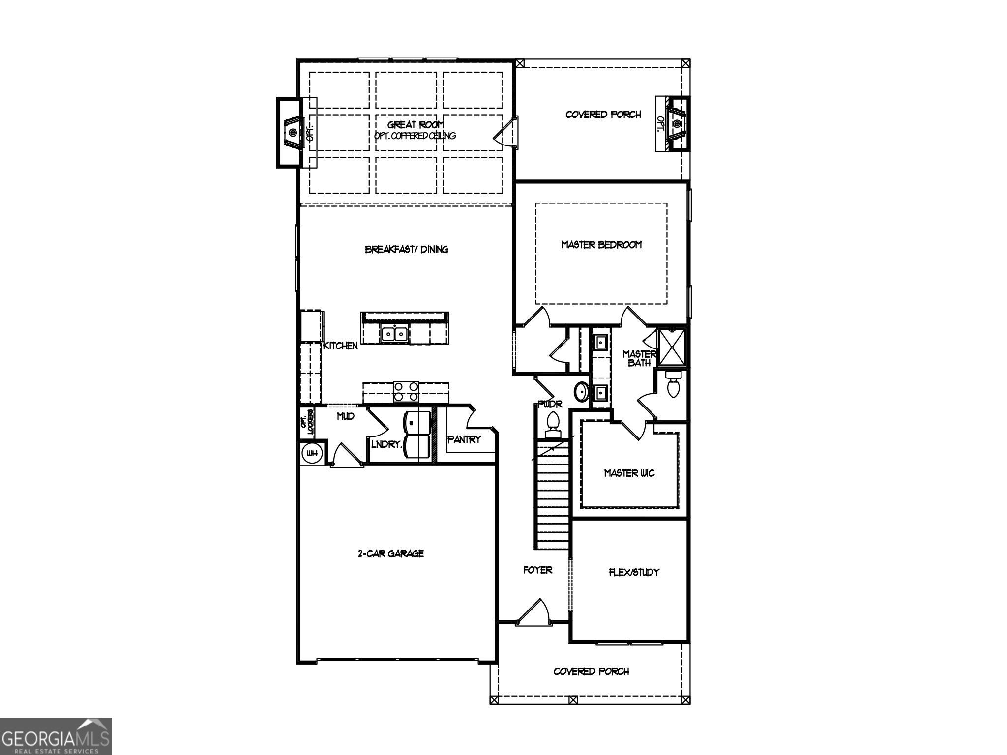
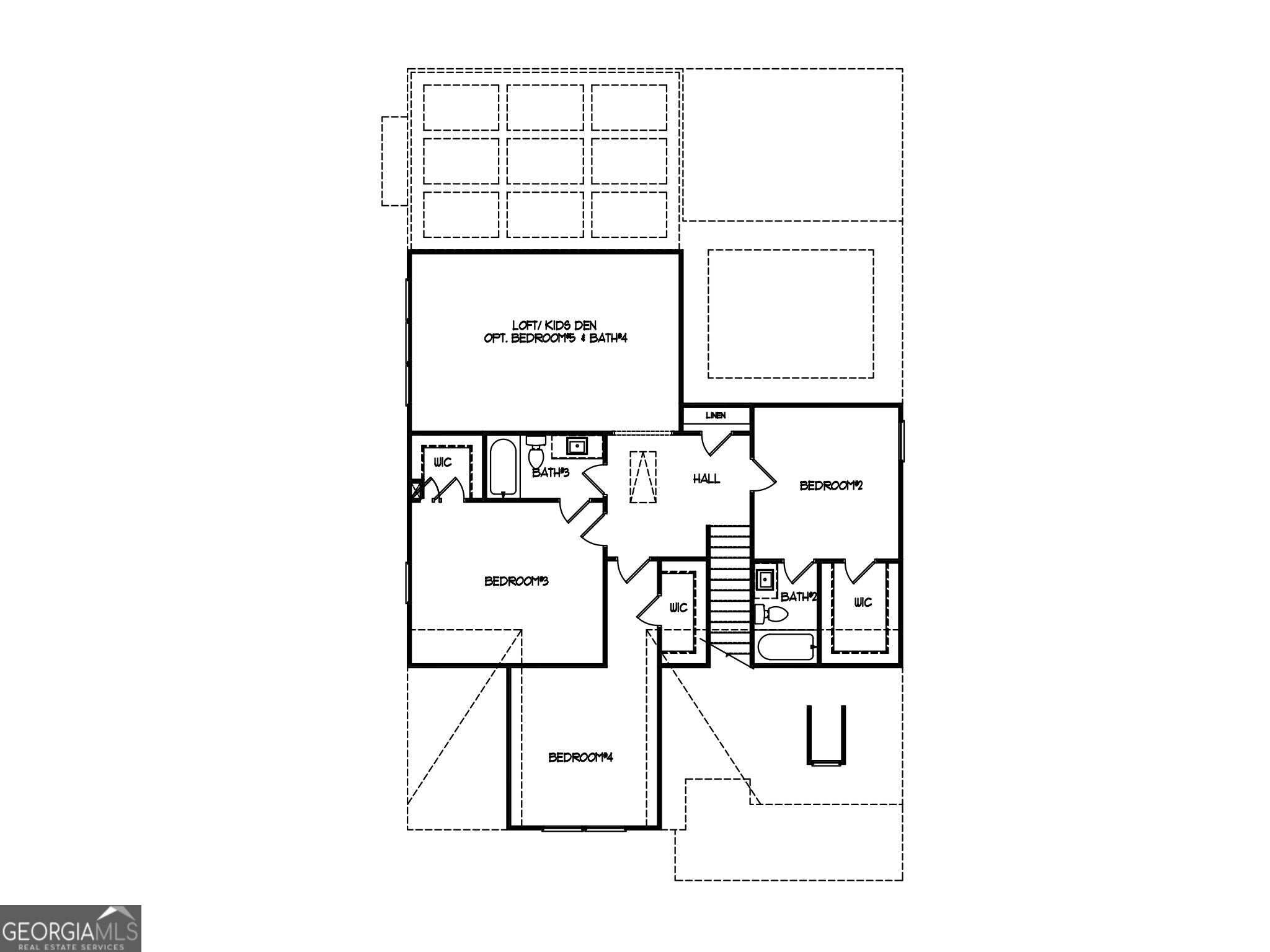
The Azalea plan built by My Home Communities! Quick Move-In! Discover this stunning two-story home featuring 4 bedrooms and 3.5 baths, situated on a private 0.21-acre homesite in Statham. Offering the perfect blend of comfort and convenience, this home is just minutes from Athens with easy access to US-29. The main level welcomes you with an inviting foyer and versatile flex room, leading into an open-concept kitchen that overlooks the breakfast/dining areas and spacious family room, ideal for both everyday living and entertaining. Standout features include granite countertops, stainless steel appliances, 36" soft-close cabinetry, tile backsplash, and more. The primary suite is a true retreat, showcasing a tray ceiling, LVP flooring, dual vanities, a large tiled shower with bench, and an expansive walk-in closet. Upstairs, you'll find three generously sized secondary bedrooms, two full bathrooms, and a loft, completing this thoughtfully designed floor plan.Schedule an appointment for a showing today! Estimated completion February/March 2026. Contact us TODAY to learn about our Rates Starting as Low as 1.99%* with use of Seller's Preferred Lender! *Secondary photos and Matterport tour are an example of the floor plan and not of the actual listing*
Essential Information
- MLS® #10666078
- Price$425,250
- Bedrooms4
- Bathrooms4.00
- Full Baths3
- Half Baths1
- Square Footage2,880
- Acres0.21
- Year Built2026
- TypeResidential
- Sub-TypeSingle Family Residence
- StyleTraditional
- StatusActive
Amenities
- UtilitiesCable Available, Electricity Available, High Speed Internet, Natural Gas Available, Phone Available, Underground Utilities, Water Available
- ParkingAttached, Garage, Garage Door Opener
Exterior
- Lot DescriptionPrivate
- RoofComposition
- ConstructionConcrete, Stone
- FoundationSlab
Additional Information
- Days on Market35
Community Information
- Address71 Cochin Drive
- SubdivisionSutton's Landing
- CityStatham
- CountyBarrow
- StateGA
- Zip Code30666
Interior
- Interior FeaturesDouble Vanity, High Ceilings, Master On Main Level, Tray Ceiling(s), Walk-In Closet(s)
- AppliancesDishwasher, Gas Water Heater, Microwave, Stainless Steel Appliance(s)
- HeatingHeat Pump, Natural Gas, Zoned
- CoolingGas, Heat Pump, Zoned
- FireplacesFamily Room
- StoriesTwo
School Information
- ElementaryBethlehem
- MiddleHaymon Morris
- HighApalachee
Listing Details
- Listing Provided Courtesy Of Re/max Tru, Inc.
Price Change History for 71 Cochin Drive, Statham, GA (MLS® #10666078)
| Date | Details | Price | Change |
|---|---|---|---|
| Active | – | – | |
| Price Change | – | – | |
| Price Increased | $425,250 | $800 (0.19%) | |
| Active | – | – | |
| Price Increased | $424,450 | $1,000 (0.24%) | |
| Show More (2) | |||
| Price Change (from New) | – | – | |
| Price Reduced (from $433,450) | $423,450 | $10,000 (2.31%) | |
The data relating to real estate for sale on this web site comes in part from the Broker Reciprocity Program of Georgia MLS. Real estate listings held by brokerage firms other than Go Realty Of Georgia & Alabam are marked with the Broker Reciprocity logo and detailed information about them includes the name of the listing brokers.
The information being provided is for consumers' personal, non-commercial use and may not be used for any purpose other than to identify prospective properties consumers may be interested in purchasing. Information Deemed Reliable But Not Guaranteed.
The broker providing this data believes it to be correct, but advises interested parties to confirm them before relying on them in a purchase decision.
Copyright 2026 Georgia MLS. All rights reserved.
Listing information last updated on March 15th, 2026 at 5:00am CDT.


















