Hi There! Is this Your First Time?
Did you know if you Register you have access to free search tools including the ability to save listings and property searches? Did you know that you can bypass the search altogether and have listings sent directly to your email address? Check out our how-to page for more info.
- Price$1,921,800
- Acres6.13
- Built2001
924 S Houston Lake Road, Warner Robins
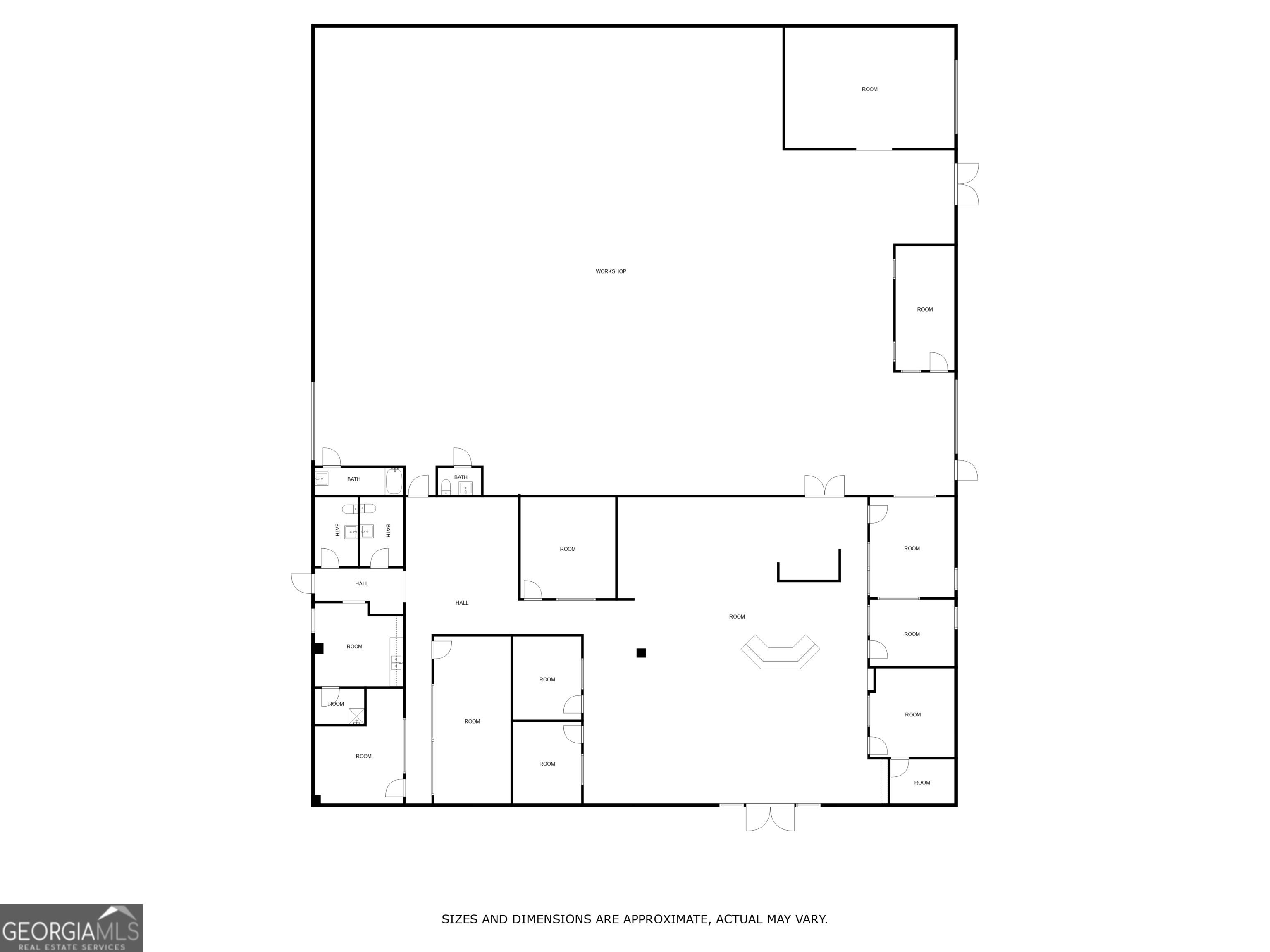
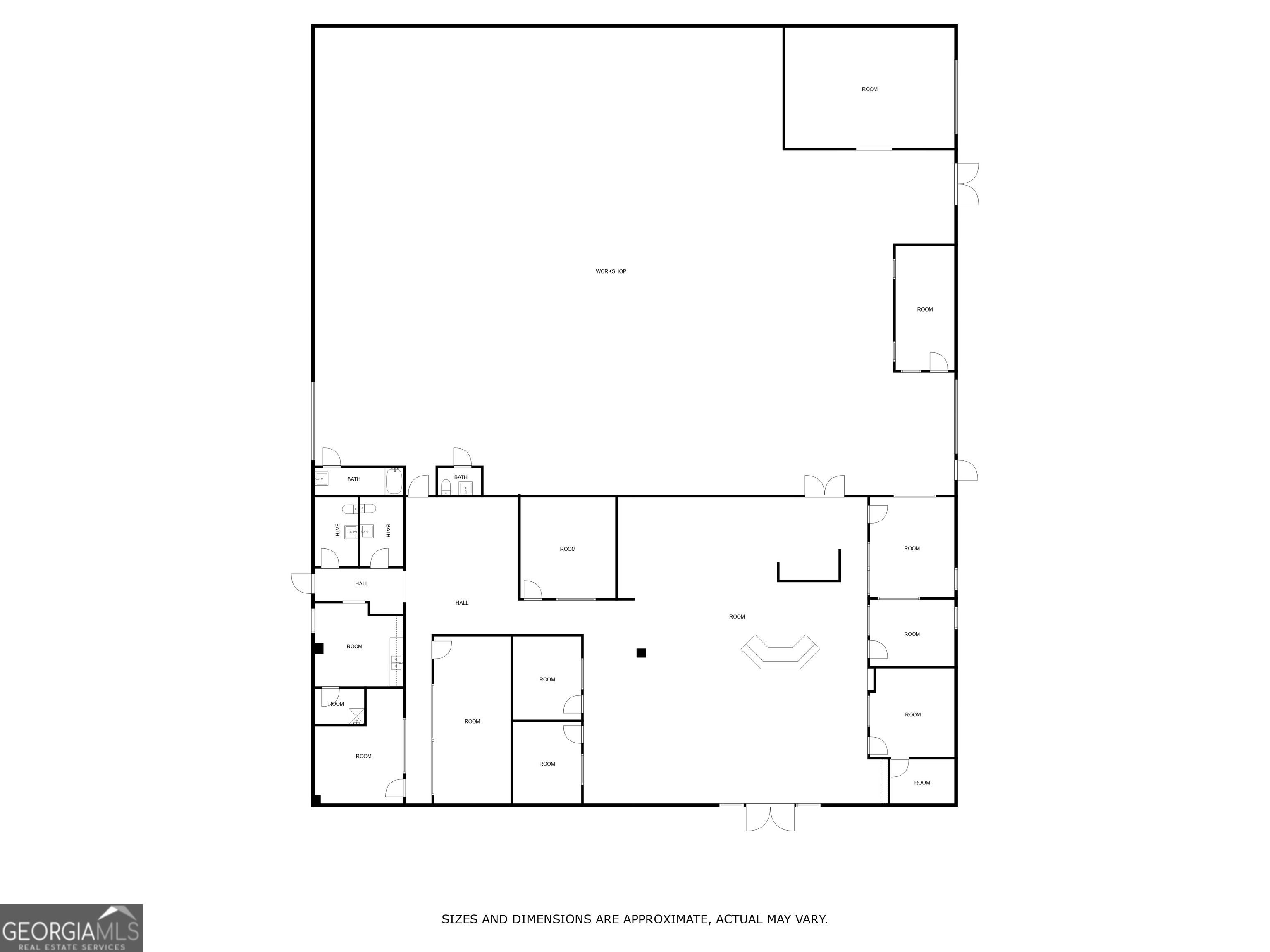
Commercial Warehouse & Office Space | 10,773 SF | 924 S Houston Lake Rd Prime commercial opportunity offering 10,773 square feet of versatile warehouse and office/showroom space, ideal for distribution, light industrial, service-based businesses, or owner-users seeking a highly functional layout. The property features approximately 6,000 square feet of warehouse space, equipped with a bathroom, secured, caged/locked inventory closet, a loading dock, and two roll-up garage doors for efficient shipping, receiving, and operations. The remaining 4,000 square feet consists of office and showroom space, providing a professional front-of-house presence. This area includes two bathrooms and a kitchen, making it well-suited for administrative staff, client meetings, or retail/showroom use. Key Features: Total building size: 10,773 SF 5774 SF warehouse Loading dock Two roll-up garage doors Secured caged inventory/storage area 4,999 SF office/showroom Three restrooms Kitchen/breakroom Functional layout supporting a wide range of commercial uses Excellent accessibility and visibility along S Houston Lake Road This property offers the perfect blend of operational efficiency and professional presentation, making it an excellent choice for businesses looking to expand or establish a long-term location.
Essential Information
- MLS® #10668328
- Price$1,921,800
- Bathrooms0.00
- Acres6.13
- Year Built2001
- TypeCommercial Sale
- StatusNew
Amenities
- UtilitiesCable Available, Electricity Available, High Speed Internet, Phone Available, Sewer Available, Underground Utilities, Water Available
- ParkingDrive Through, Secured, Paved, Parking Lot
Exterior
- Lot DescriptionCorner Lot, Level, Semi Turning Available
- RoofMetal
- ConstructionSteel Siding
Listing Details
- Listing Provided Courtesy Of Realty Hub Of Georgia, Llc
Community Information
- Address924 S Houston Lake Road
- SubdivisionComm Carl Vinson
- CityWarner Robins
- CountyHouston
- StateGA
- Zip Code31088
Interior
- HeatingCentral
- CoolingCentral Air
Additional Information
- ZoningC2
The data relating to real estate for sale on this web site comes in part from the Broker Reciprocity Program of Georgia MLS. Real estate listings held by brokerage firms other than Go Realty Of Georgia & Alabam are marked with the Broker Reciprocity logo and detailed information about them includes the name of the listing brokers.
The information being provided is for consumers' personal, non-commercial use and may not be used for any purpose other than to identify prospective properties consumers may be interested in purchasing. Information Deemed Reliable But Not Guaranteed.
The broker providing this data believes it to be correct, but advises interested parties to confirm them before relying on them in a purchase decision.
Copyright 2026 Georgia MLS. All rights reserved.
Listing information last updated on January 12th, 2026 at 8:32am CST.




