Hi There! Is this Your First Time?
Did you know if you Register you have access to free search tools including the ability to save listings and property searches? Did you know that you can bypass the search altogether and have listings sent directly to your email address? Check out our how-to page for more info.
- Price$519,900
- Beds3
- Baths3
- SQ. Feet1,841
- Acres1.69
- Built2026
402 Acerose Drive, Jasper
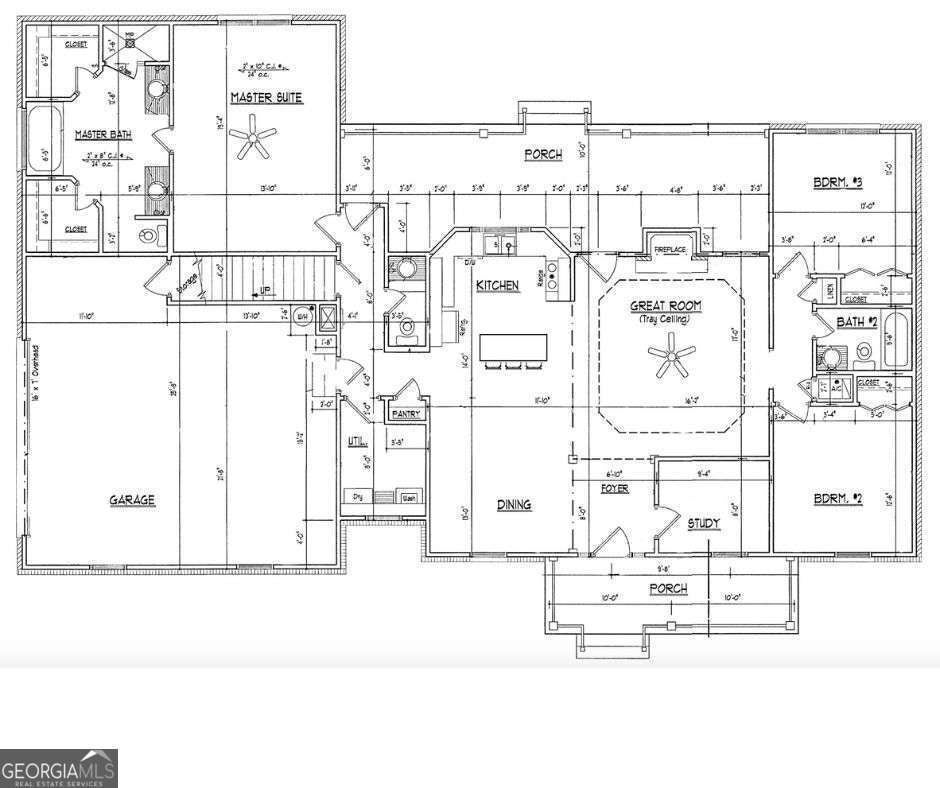
Set within the peaceful, private community of Salacoa Highlands, this beautiful to-be-built home with the Rebecca floorplan offers a thoughtfully designed new-construction opportunity that blends timeless style with everyday comfort. This three-bedroom, two-and-a-half-bath home features an inviting open-concept layout where the kitchen flows seamlessly into the great room, creating a light-filled space ideal for both quiet evenings and effortless entertaining. The primary suite is conveniently located on the main level and includes dual closets, dual vanities, and a spa-inspired bath with a separate soaking tub and walk-in shower, creating a true retreat. A dedicated study adds flexibility for a home office or creative space, while the covered front and back porches extend the living area outdoors, perfect for enjoying the surrounding natural setting. For added versatility, there is an option to upgrade with a finished upstairs bedroom and full bathroom, offering additional space for guests or future needs. Crafted by a respected builder known for high-end finishes and quality construction, this home pairs refined design with the serenity of Salacoa Highlands, just a short drive from the charm and conveniences of historic downtown Jasper. Schedule your showing and builder consult today!!
Essential Information
- MLS® #10685954
- Price$519,900
- Bedrooms3
- Bathrooms3.00
- Full Baths2
- Half Baths1
- Square Footage1,841
- Acres1.69
- Year Built2026
- TypeResidential
- Sub-TypeSingle Family Residence
- StyleRanch, Traditional
- StatusActive
Amenities
- UtilitiesElectricity Available
- Parking Spaces2
- ParkingAttached, Garage, Kitchen Level, Side/Rear Entrance
Exterior
- Lot DescriptionPrivate
- WindowsDouble Pane Windows
- RoofComposition
- ConstructionPress Board
- FoundationSlab
Additional Information
- Days on Market23
Community Information
- Address402 Acerose Drive
- SubdivisionSalacoa Highlands
- CityJasper
- CountyPickens
- StateGA
- Zip Code30143
Interior
- Interior FeaturesDouble Vanity, Master On Main Level, Split Bedroom Plan, Vaulted Ceiling(s), Walk-In Closet(s)
- AppliancesDishwasher, Dryer, Microwave, Refrigerator, Washer
- HeatingCentral
- CoolingCeiling Fan(s), Central Air
- FireplaceYes
- # of Fireplaces1
- FireplacesMasonry, Wood Burning Stove
- StoriesOne and One Half
School Information
- ElementaryHill City
- MiddleJasper
- HighPickens County
Listing Details
- Listing Provided Courtesy Of Keller Williams Elevate
Price Change History for 402 Acerose Drive, Jasper, GA (MLS® #10685954)
| Date | Details | Price | Change |
|---|---|---|---|
| Active (from New) | – | – |
The data relating to real estate for sale on this web site comes in part from the Broker Reciprocity Program of Georgia MLS. Real estate listings held by brokerage firms other than Go Realty Of Georgia & Alabam are marked with the Broker Reciprocity logo and detailed information about them includes the name of the listing brokers.
The information being provided is for consumers' personal, non-commercial use and may not be used for any purpose other than to identify prospective properties consumers may be interested in purchasing. Information Deemed Reliable But Not Guaranteed.
The broker providing this data believes it to be correct, but advises interested parties to confirm them before relying on them in a purchase decision.
Copyright 2026 Georgia MLS. All rights reserved.
Listing information last updated on April 4th, 2026 at 4:15am CDT.






