Hi There! Is this Your First Time?
Did you know if you Register you have access to free search tools including the ability to save listings and property searches? Did you know that you can bypass the search altogether and have listings sent directly to your email address? Check out our how-to page for more info.
- Price$415,000
- Beds3
- Baths2
- SQ. Feet2,384
- Acres1.04
- Built1990
275 Peachtree Street, Winterville
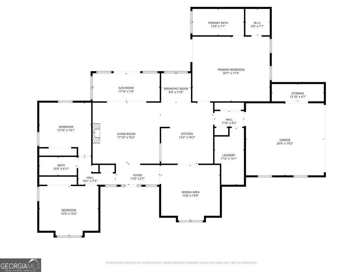
Beautifully renovated 3-bedroom, 2-bath ranch on one acre in a quiet Winterville street! This move-in ready home offers the perfect blend of space, comfort, and convenience-just an easy walk to Downtown Winterville and everything it has to offer. Situated on a level, fully fenced lot, the property features a circular driveway, additional parking pad, and a double garage with extra storage space. Inside, you'll find a thoughtfully designed split floor plan with an abundance of living space. The oversized owner's suite is privately tucked away and features a large walk-in closet, French doors leading to the back patio, and a spacious en-suite bath complete with double vanities, a walk-in shower, and a soaking tub. On the opposite side of the home, two generously sized secondary bedrooms offer large built-in closets and share a well-appointed full bathroom-ideal for guests or family. The heart of the home is designed for both everyday living and entertaining, with a flowing layout that includes a formal dining room, a bright and inviting den with 12-foot vaulted ceilings and built-in cabinetry, and a sunroom with French doors opening to the backyard. The kitchen boasts an island, abundant cabinet space, a large pantry, and a charming breakfast nook overlooking the private backyard. Additional features include an oversized laundry room with room for storage or potential mudroom conversion, along with all new flooring, fresh paint, updated lighting, and new countertops in the kitchen and bathrooms. This home checks all the boxes-space, updates, location, and charm-don't miss it!
Essential Information
- MLS® #10732874
- Price$415,000
- Bedrooms3
- Bathrooms2.00
- Full Baths2
- Square Footage2,384
- Acres1.04
- Year Built1990
- TypeResidential
- Sub-TypeSingle Family Residence
- StyleTraditional
- StatusNew
Amenities
- UtilitiesUnderground Utilities
- Parking Spaces4
- ParkingAttached, Garage, Garage Door Opener, Parking Pad
Exterior
- Lot DescriptionLevel
- RoofComposition
- ConstructionConcrete
- FoundationSlab
Additional Information
- Days on Market2
Community Information
- Address275 Peachtree Street
- SubdivisionNone
- CityWinterville
- CountyClarke
- StateGA
- Zip Code30683
Interior
- Interior FeaturesBookcases, Double Vanity, High Ceilings, Master On Main Level, Pulldown Attic Stairs, Separate Shower, Split Bedroom Plan, Walk-In Closet(s)
- AppliancesCooktop, Dishwasher, Oven (Wall)
- HeatingCentral, Electric
- CoolingCentral Air, Electric
- FireplaceYes
- # of Fireplaces1
- FireplacesLiving Room
- StoriesOne
School Information
- ElementaryWinterville
- MiddleCoile
- HighCedar Shoals
Listing Details
- Listing Provided Courtesy Of Coldwell Banker Upchurch Realty
The data relating to real estate for sale on this web site comes in part from the Broker Reciprocity Program of Georgia MLS. Real estate listings held by brokerage firms other than Go Realty Of Georgia & Alabam are marked with the Broker Reciprocity logo and detailed information about them includes the name of the listing brokers.
The information being provided is for consumers' personal, non-commercial use and may not be used for any purpose other than to identify prospective properties consumers may be interested in purchasing. Information Deemed Reliable But Not Guaranteed.
The broker providing this data believes it to be correct, but advises interested parties to confirm them before relying on them in a purchase decision.
Copyright 2026 Georgia MLS. All rights reserved.
Listing information last updated on April 17th, 2026 at 6:46am CDT.



























